グランアクス麹町 5階 1991030505 | 東京都心の高級賃貸マンション [TOKYO RENT]

グランアクス麹町 5階 1991030505の賃貸情報

賃料
44.8万円
管理費
無し
間取り
2LDK
面積
86.34㎡
階数
5階
入居可能日
即入居可

半蔵門線「半蔵門」駅徒歩1分、有楽町線「麹町」駅徒歩5分の立地。

outline 物件概要・設備

建物名
グランアクス麹町(建物ID: 134780 / 物件ID: 1991030505)
住所
東京都千代田区麹町2
交通 / 駅徒歩
半蔵門線 半蔵門駅 徒歩1分
有楽町線 麹町駅 徒歩5分
都営新宿線 市ヶ谷駅 徒歩13分
※当該物件の最寄駅(路線)、バス停、およびそこまでの徒歩所要時間です。
賃料 / 管理費
44.8万円 / 無し(坪単価: 17,158円)
敷金 / 礼金
1ヶ月 / 1ヶ月
契約期間
2年
更新料
1ヶ月
その他費用
お問い合わせください
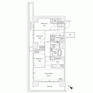
間取り / 面積
2LDK / 86.34㎡(26.11坪)
間取り詳細
洋室 12.2帖、洋室 6.4帖、リビングダイニング 13.7帖、キッチン 3帖、バルコニー / 2面バルコニー
方位
南向き
階建 / 階数
地上10階地下2階建 / 5階部分
構造
鉄骨鉄筋コンクリート造
総戸数
16戸
竣工年月
1991年3月
入居可能日
即入居可
入居諸条件
ペット不可、 住居兼事務所不可
保険
借家人賠償保険に加入していただきます
建物設備・施設
エレベーター、 オートロック、 防犯カメラ、 敷地内ゴミ置場
部屋設備
システムキッチン、 コンロ3口、 全面フローリング、 クローゼット、 シューズクローゼット、 エアコン、 追焚機能付き、 給湯、 洗面所独立、 BT別、 室内洗濯機置場、 セキュリティシステム、 TVモニター付インターホン
その他
2面採光
備考
■鍵交換費用が別途発生致します。■T-Support Club会費が別途発生いたします。■保証会社必須。【月次型】初回保証料:契約時月額賃料等の40%、継続保証料:毎月月額賃料等の1%(※保証委託最低金額 初回5万円、継続 月次1000円)。【年次型】初回保証料:契約時月額賃料等の50%、継続保証料:毎年1万円。※契約型は保証会社による。
取り扱い会社
株式会社ケン・コーポレーション 飯田橋支店
取引形態
仲介
通学区域小学校
麹町小学校 (約200m)
情報更新日
2026年4月27日
次回更新予定日
2026年5月11日

map 地図

contact お問い合わせ

お問合せの際は物件名や物件番号をお伝えください。
ケン・コーポレーションの営業員が、お客様のご都合に合わせて物件をご案内いたします。

お問い合わせ・内覧予約はこちら
グランアクス麹町 5階 物件番号:1991030505
0120-395-422
ケン・コーポレーション 飯田橋支店 ※「TOKYO RENTを見て」とお伝えください。
契約成立の場合、弊社に対して仲介手数料として賃料の1.1カ月分相当額のお支払いの承諾をお願いいたします。 間取り表記の詳細:数字=「居室数」、L=「リビングルーム」、D=「ダイニングルーム」、K=「キッチン」、S=「サービスルーム」、F=「ファミリールーム」を指します。 本サイト記載の金額のうち消費税課税となるものについては、支払時点で適用される税率により算出された金額でお支払い頂きますので、本サイト上の金額と、実際にお支払い頂く金額とが異なる場合があることを予めご了承ください。 住宅に関する賃料・管理費は非課税です。 当物件の入居者には借家人賠償保険に加入していただきます。 契約に保証会社をご利用いただく場合には、保証会社との契約締結並びに保証委託料のお支払をいただきます。 賃貸借契約が終了した場合、賃借人または居住者の使用状況や清掃状況にかかわらず、室内清掃(カーペット、壁、天井、建具及び設備機器を含む)費用を賃借人にご負担いただきます。 携帯電話の受信状況は、実際にご使用される携帯電話で室内から通話確認をお願い致します。 定期借家契約の場合の再契約についてはお問い合わせ下さい。尚、再契約が可能な場合は、別途再契約料等がかかります。 間取図・方位・写真・内装仕様など、本サイトの記載概要と現況が異なる場合は現況を優先させていただきます。また、家具付き等の表示がある場合を除き、写真中の家具・調度品などは物件に含まれません。 BS、CS、CATV等の各種放送の視聴の可否、視聴方法、料金形態、並びにインターネットの接続環境、料金形態は、物件別に異なりますので、各サービスの提供業者に直接ご確認下さるようお願いいたします。 設備、施設は別途契約や利用料金がかかるものもございますのでご確認をお願いいたします。 駐車場の空き状況についてはお問い合わせください。 本サイトにおける小学校区は、各自治体より出されている学区データを基に表示したものであり、該当小学校区を保証するものではありません。最新の小学校区に関しましては、各自治体へ直接ご確認ください。 掲載している物件が万が一成約の際はご了承ください。 東京都港区西麻布1-2-7 
株式会社 ケン・コーポレーション 
宅地建物取引業 国土交通大臣 (8) 第4372 号 
取引態様:仲介

recommend - area

グランアクス麹町と同じエリアの高級賃貸マンション

  • パークコート ザ・三番町ハウス

    賃料
    47万円~59.8万円
    間取り
    2LDK+WIC~3LDK+WIC
    住所
    東京都千代田区三番町28
    交通
    半蔵門線 半蔵門駅 徒歩8分 他
    竣工
    2025年11月
  • フィシオ飯田橋

    賃料
    29.2万円~30.6万円
    間取り
    1LDK
    住所
    東京都千代田区飯田橋2
    交通
    東西線 九段下駅 徒歩4分 他
    竣工
    2025年2月
千鳥ヶ淵・番町エリア一覧

recommend - station

グランアクス麹町と同じ駅の高級賃貸マンション

  • 麹町レジデンス

    賃料
    29万円~38万円
    間取り
    1ROOM~1SLDK
    住所
    東京都千代田区麹町3
    交通
    有楽町線 麹町駅 徒歩1分 他
    竣工
    2000年10月
  • パークハビオ平河町

    賃料
    30.5万円
    間取り
    1LDK
    住所
    東京都千代田区平河町1
    交通
    有楽町線 麹町駅 徒歩2分 他
    竣工
    2014年9月

recommend - room

グランアクス麹町 5階(2LDK / 86.34㎡)と条件が近い高級賃貸マンションのお部屋

  • THE GRANDUO FUTAKOTAMAGAWA 3階 新築

    賃料
    51万円 / 管理費:無し
    間取り
    2LDK
    面積
    81.82㎡
    住所
    東京都世田谷区玉川2
    交通
    田園都市線 二子玉川駅 徒歩7分 他
    部屋詳細
  • THE GRANDUO FUTAKOTAMAGAWA 2階 新築

    賃料
    49.5万円 / 管理費:無し
    間取り
    2LDK
    面積
    81.82㎡
    住所
    東京都世田谷区玉川2
    交通
    田園都市線 二子玉川駅 徒歩7分 他
    部屋詳細
  • HF目黒行人坂レジデンス 1階 NEW

    賃料
    46.2万円 / 管理費:1.2万円
    間取り
    2LDK
    面積
    79.29㎡
    住所
    東京都目黒区下目黒1
    交通
    山手線 目黒駅 徒歩5分 他
    部屋詳細
  • HARUMI FLAG SUN VILLAGE 12階 NEW

    賃料
    42.4万円 / 管理費:無し
    間取り
    3LDK
    面積
    86.45㎡
    住所
    東京都中央区晴海5
    交通
    都営大江戸線 勝どき駅 徒歩18分 他
    部屋詳細
検討中リストへ追加しました 右上のボタンからまとめて
確認することができます