渋谷インフォスタワーハイツ 20階 2006080412 | 東京都心の高級賃貸マンション [TOKYO RENT]

渋谷インフォスタワーハイツ 20階 2006080412の賃貸情報

賃料
69.9万円
管理費
無し
間取り
1LDK
面積
82.14㎡
階数
20階
入居可能日
要相談

桜丘町に所在する渋谷駅のシンボリックタワー物件「渋谷インフォスタワーハイツ」

outline 物件概要・設備

建物名
渋谷インフォスタワーハイツ(建物ID: 181282 / 物件ID: 2006080412)
住所
東京都渋谷区桜丘町20
交通 / 駅徒歩
山手線 渋谷駅 徒歩5分
※当該物件の最寄駅(路線)、バス停、およびそこまでの徒歩所要時間です。
賃料 / 管理費
69.9万円 / 無し(坪単価: 28,140円)
敷金 / 礼金
2ヶ月 / 0ヶ月
契約期間
2年
更新料
1ヶ月
その他費用
お問い合わせください
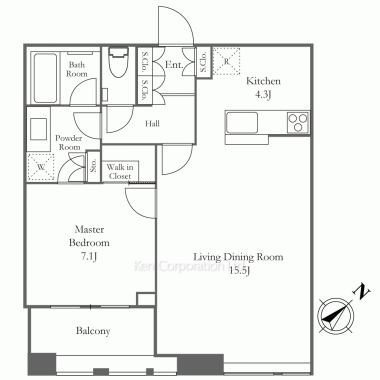
間取り / 面積
1LDK / 82.14㎡(24.84坪)
間取り詳細
洋室 9.2帖、リビングダイニング 22.5帖、キッチン 3.9帖、バルコニー / 2面バルコニー
方位
南向き
階建 / 階数
地上21階地下4階建 / 20階部分
構造
鉄骨鉄筋コンクリート造
総戸数
竣工年月
1998年3月
入居可能日
要相談
入居諸条件
ペット不可、 住居兼事務所不可、 楽器相談
保険
借家人賠償保険に加入していただきます
建物設備・施設
エレベーター、 オートロック、 防犯カメラ、 24時間有人管理、 敷地内ゴミ置場
部屋設備
システムキッチン、 コンロ3口、 ガスレンジ、 クローゼット、 エアコン、 給湯、 洗面所独立、 BT別、 室内洗濯機置場、 TVモニター付インターホン、 インターネット専用線(光)、 CATV、 BS、 CS
その他
2面採光
備考
償却有り1ヶ月。
■保証会社必須。【月次型】初回保証料:契約時月額賃料等の40%、継続保証料:毎月月額賃料等の1%(※保証委託最低金額 初回5万円、継続 月次1000円)。【年次型】初回保証料:契約時月額賃料等の50%、継続保証料:毎年1万円。※契約型は保証会社による。
取り扱い会社
株式会社ケン・コーポレーション 渋谷代官山支店
取引形態
仲介
通学区域小学校
神南小学校 (約1,200m)
情報更新日
2026年4月14日
次回更新予定日
2026年4月28日

map 地図

contact お問い合わせ

お問合せの際は物件名や物件番号をお伝えください。
ケン・コーポレーションの営業員が、お客様のご都合に合わせて物件をご案内いたします。

お問い合わせ・内覧予約はこちら
渋谷インフォスタワーハイツ 20階 物件番号:2006080412
0120-624-655
ケン・コーポレーション 渋谷代官山支店 ※「TOKYO RENTを見て」とお伝えください。
契約成立の場合、弊社に対して仲介手数料として賃料の1.1カ月分相当額のお支払いの承諾をお願いいたします。 間取り表記の詳細:数字=「居室数」、L=「リビングルーム」、D=「ダイニングルーム」、K=「キッチン」、S=「サービスルーム」、F=「ファミリールーム」を指します。 本サイト記載の金額のうち消費税課税となるものについては、支払時点で適用される税率により算出された金額でお支払い頂きますので、本サイト上の金額と、実際にお支払い頂く金額とが異なる場合があることを予めご了承ください。 住宅に関する賃料・管理費は非課税です。 当物件の入居者には借家人賠償保険に加入していただきます。 契約に保証会社をご利用いただく場合には、保証会社との契約締結並びに保証委託料のお支払をいただきます。 賃貸借契約が終了した場合、賃借人または居住者の使用状況や清掃状況にかかわらず、室内清掃(カーペット、壁、天井、建具及び設備機器を含む)費用を賃借人にご負担いただきます。 携帯電話の受信状況は、実際にご使用される携帯電話で室内から通話確認をお願い致します。 定期借家契約の場合の再契約についてはお問い合わせ下さい。尚、再契約が可能な場合は、別途再契約料等がかかります。 間取図・方位・写真・内装仕様など、本サイトの記載概要と現況が異なる場合は現況を優先させていただきます。また、家具付き等の表示がある場合を除き、写真中の家具・調度品などは物件に含まれません。 BS、CS、CATV等の各種放送の視聴の可否、視聴方法、料金形態、並びにインターネットの接続環境、料金形態は、物件別に異なりますので、各サービスの提供業者に直接ご確認下さるようお願いいたします。 設備、施設は別途契約や利用料金がかかるものもございますのでご確認をお願いいたします。 駐車場の空き状況についてはお問い合わせください。 本サイトにおける小学校区は、各自治体より出されている学区データを基に表示したものであり、該当小学校区を保証するものではありません。最新の小学校区に関しましては、各自治体へ直接ご確認ください。 掲載している物件が万が一成約の際はご了承ください。 東京都港区西麻布1-2-7 
株式会社 ケン・コーポレーション 
宅地建物取引業 国土交通大臣 (8) 第4372 号 
取引態様:仲介

recommend - area

渋谷インフォスタワーハイツと同じエリアの高級賃貸マンション

  • Urban Breeze 恵比寿

    賃料
    34.1万円~68万円
    間取り
    1LDK+WIC~2LDK+SIC
    住所
    東京都渋谷区東3
    交通
    日比谷線 恵比寿駅 徒歩7分 他
    竣工
    2026年3月
  • アジールコート松濤

    賃料
    間取り
    住所
    東京都渋谷区松濤2
    交通
    井の頭線 神泉駅 徒歩7分 他
    竣工
    2025年8月
渋谷エリア一覧
  • ASK中目黒

    賃料
    42万円~54万円
    間取り
    2LDK~3LDK
    住所
    東京都目黒区上目黒3
    交通
    東横線 祐天寺駅 徒歩10分 他
    竣工
    2026年4月
  • パークアクシス代官山

    賃料
    38.7万円~57.4万円
    間取り
    1LDK~2LDK
    住所
    東京都渋谷区恵比寿西2
    交通
    日比谷線 恵比寿駅 徒歩7分 他
    竣工
    2008年10月
代官山エリア一覧

recommend - station

渋谷インフォスタワーハイツと同じ駅の高級賃貸マンション

  • カルチェ恵比寿

    賃料
    30万円
    間取り
    1SLDK
    住所
    東京都渋谷区恵比寿1
    交通
    山手線 恵比寿駅 徒歩5分 他
    竣工
    1999年11月
  • カスタリア渋谷櫻丘

    賃料
    30.8万円~33.2万円
    間取り
    1ROOM~1LDK
    住所
    東京都渋谷区桜丘町29
    交通
    山手線 渋谷駅 徒歩8分 他
    竣工
    2007年4月

recommend - room

渋谷インフォスタワーハイツ 20階(1LDK / 82.14㎡)と条件が近い高級賃貸マンションのお部屋

  • OIMACHI TRACKS RESIDENCE 24階 NEW

    賃料
    77万円 / 管理費:無し
    間取り
    2LDK
    面積
    84.78㎡
    住所
    東京都品川区広町2
    交通
    京浜東北線 大井町駅 徒歩2分 他
    部屋詳細
  • アトラス麻布台 9階 NEW 新築

    賃料
    75万円 / 管理費:無し
    間取り
    2LDK
    面積
    81.53㎡
    住所
    東京都港区麻布台3
    交通
    南北線 麻布十番駅 徒歩6分 他
    部屋詳細

history 最近見た物件

  • Dマークス西新宿タワー 27階 NEW 申込あり

    賃料
    41.1万円 / 管理費:2.2万円
    間取り
    1LDK
    面積
    59.68㎡
    住所
    東京都新宿区西新宿6
    交通
    丸ノ内線 西新宿駅 徒歩4分 他
    部屋詳細
  • Dマークス西新宿タワー 24階 NEW 申込あり

    賃料
    40.3万円 / 管理費:2.2万円
    間取り
    1LDK
    面積
    60.39㎡
    住所
    東京都新宿区西新宿6
    交通
    丸ノ内線 西新宿駅 徒歩4分 他
    部屋詳細
閲覧履歴を見る
検討中リストへ追加しました 右上のボタンからまとめて
確認することができます