Brillia ist Tower 勝どき 26階 2010120433 | 東京都心の高級賃貸マンション [TOKYO RENT]

Brillia ist Tower 勝どき 26階 2010120433の賃貸情報

賃料
31.3万円
管理費
1.9万円
間取り
1LDK
面積
56.11㎡
階数
26階
入居可能日
2026年6月下旬予定

Brillia istブランドの「新婚生活応援特典(フリーレント1か月分)」対象物件※契約開始日の前後6ヶ月以内にご入籍された(される)方で2人入居の場合※法人契約対象外

outline 物件概要・設備

建物名
Brillia ist Tower 勝どき(建物ID: 165889 / 物件ID: 2010120433)
住所
東京都中央区勝どき1
交通 / 駅徒歩
都営大江戸線 勝どき駅 徒歩3分
有楽町線 月島駅 徒歩10分
日比谷線 築地駅 徒歩12分
山手線 東京駅 バス15分 勝どき橋南詰バス停 徒歩2分
※当該物件の最寄駅(路線)、バス停、およびそこまでの徒歩所要時間です。
賃料 / 管理費
31.3万円 / 1.9万円(坪単価: 19,563円)
敷金 / 礼金
1ヶ月 / 1ヶ月
契約期間
2年(定期借家契約)
更新料
-
その他費用
お問い合わせください
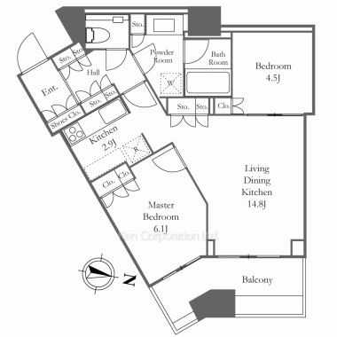
間取り / 面積
1LDK / 56.11㎡(16.97坪)
間取り詳細
洋室 6帖、リビングダイニング 15.2帖、キッチン 3.1帖、バルコニー(5.46㎡)
方位
北東向き
階建 / 階数
地上45階地下2階建 / 26階部分
構造
鉄筋コンクリート造(免震構造)
総戸数
536戸
竣工年月
2011年1月
入居可能日
2026年6月下旬予定
入居諸条件
ペット不可、 住居兼事務所不可
保険
借家人賠償保険に加入していただきます
駐車場
有り(35,200円)機械式、 地下 ※1台まで
※詳細はお問い合わせください。
駐輪場・バイク置場
駐輪場有り 1台¥440(税込)、 バイク置場有り 大型4台¥16,500/中型16台¥11,000/原付1台¥5,500税込
※詳細はお問い合わせください。
建物設備・施設
エレベーター、 オートロック、 防犯カメラ、 宅配BOX、 スポーツジム、 スカイラウンジ(屋上庭園)、 フロントサービス、 コンシェルジェサービス、 24時間有人管理
その他: ラウンジ(40F)・フィットネスルーム(30F)・コンシェルジュサービス9:00-21:00(曜日により変動あり)レンタサイクル40台・中央区認定こども園・セブンイレブン等、充実の共用設備。
※施設利用に対して別途ご利用料金がかかることがありますのでご確認ください。
部屋設備
カウンターキッチン、 グリル付き、 コンロ3口、 クローゼット、 シューズインクローゼット、 シューズクローゼット、 エアコン、 給湯、 洗面所独立、 BT別、 室内洗濯機置場、 TVモニター付インターホン、 インターネット専用線(光)、 BS、 CS
その他: インターネット基本使用料無料(手続き不要)※Wifiルーターはご用意下さい。免震構造。レンタルサイクル無料(1台目のみ)
その他
2面採光
備考
■保証会社利用時①日本レンタル保証:初回保証料:初回保証料50%+月次1%(賃料等)■退去時、室内清掃費1,100円(税込)/平米■鍵交換費16,500円(税込)■借家人賠償保険加入費用は賃借人負担(加入後に鍵引渡しとなります)
      
建物管理会社
株式会社 東京建物アメニティサポート
取り扱い会社
株式会社ケン・コーポレーション 銀座湾岸支店
取引形態
仲介
通学区域小学校
月島第二小学校 (約200m)
情報更新日
2026年5月12日
次回更新予定日
2026年5月26日

availability その他の空室一覧

Brillia ist Tower 勝どき 空室部屋数:19 部屋
階数 間取り 面積 賃料
17階
1LDK
44.12㎡
25.5万円
13階
1LDK+ST
48.97㎡
25.6万円
14階
1LDK+ST
48.97㎡
25.8万円
19階
1LDK+ST
48.97㎡
26万円
27階
1LDK+WIC
42.09㎡
27.6万円
25階
1LDK
48.97㎡
27.9万円
26階
1LDK+ST
48.97㎡
28万円
16階
1LDK+DEN
55.04㎡
30万円
new
37階
1LDK
49.44㎡
30.4万円
21階
1LDK+ST
53.71㎡
31.1万円
31階
2LDK
56.46㎡
32.4万円
36階
2LDK+SIC
62.4㎡
36.3万円
38階
2LDK+SIC
62.4㎡
36.7万円
42階
1LDK+WIC
66.1㎡
38.2万円
38階
2LDK+WIC
74.38㎡
40.9万円
30階
2LDK+WIC
84.82㎡
48.2万円
40階
3LDK+WIC
96.81㎡
56.6万円
41階
2LDK+SIC
96.81㎡
56.8万円
new
44階
3LDK+WIC
96.81㎡
57.6万円
階数 間取り 面積 賃料 管理費 敷金・礼金 物件詳細
17階
1LDK
44.12㎡
25.5万円
1.5万円
1ヶ月 / 1ヶ月
詳細
13階
1LDK+ST
48.97㎡
25.6万円
1.5万円
1ヶ月 / 1ヶ月
詳細
14階
1LDK+ST
48.97㎡
25.8万円
1.5万円
1ヶ月 / 1ヶ月
詳細
19階
1LDK+ST
48.97㎡
26万円
1.5万円
1ヶ月 / 1ヶ月
詳細
27階
1LDK+WIC
42.09㎡
27.6万円
1.5万円
1ヶ月 / 1ヶ月
詳細
25階
1LDK
48.97㎡
27.9万円
1.5万円
1ヶ月 / 1ヶ月
詳細
26階
1LDK+ST
48.97㎡
28万円
1.5万円
1ヶ月 / 1ヶ月
詳細
16階
1LDK+DEN
55.04㎡
30万円
1.9万円
1ヶ月 / 1ヶ月
詳細
new
37階
1LDK
49.44㎡
30.4万円
1.5万円
1ヶ月 / 1ヶ月
詳細
21階
1LDK+ST
53.71㎡
31.1万円
1.9万円
1ヶ月 / 1ヶ月
詳細
31階
2LDK
56.46㎡
32.4万円
1.9万円
1ヶ月 / 1ヶ月
詳細
36階
2LDK+SIC
62.4㎡
36.3万円
1.9万円
1ヶ月 / 1ヶ月
詳細
38階
2LDK+SIC
62.4㎡
36.7万円
1.9万円
1ヶ月 / 1ヶ月
詳細
42階
1LDK+WIC
66.1㎡
38.2万円
1.9万円
1ヶ月 / 1ヶ月
詳細
38階
2LDK+WIC
74.38㎡
40.9万円
2.3万円
1ヶ月 / 1ヶ月
詳細
30階
2LDK+WIC
84.82㎡
48.2万円
2.3万円
1ヶ月 / 1ヶ月
詳細
40階
3LDK+WIC
96.81㎡
56.6万円
2.5万円
1ヶ月 / 1ヶ月
詳細
41階
2LDK+SIC
96.81㎡
56.8万円
2.5万円
1ヶ月 / 1ヶ月
詳細
new
44階
3LDK+WIC
96.81㎡
57.6万円
2.5万円
1ヶ月 / 1ヶ月
詳細

map 地図

contact お問い合わせ

お問合せの際は物件名や物件番号をお伝えください。
ケン・コーポレーションの営業員が、お客様のご都合に合わせて物件をご案内いたします。

お問い合わせ・内覧予約はこちら
Brillia ist Tower 勝どき 26階 物件番号:2010120433
0120-781-078
ケン・コーポレーション 銀座湾岸支店 ※「TOKYO RENTを見て」とお伝えください。
契約成立の場合、弊社に対して仲介手数料として賃料の1.1カ月分相当額のお支払いの承諾をお願いいたします。 間取り表記の詳細:数字=「居室数」、L=「リビングルーム」、D=「ダイニングルーム」、K=「キッチン」、S=「サービスルーム」、F=「ファミリールーム」を指します。 本サイト記載の金額のうち消費税課税となるものについては、支払時点で適用される税率により算出された金額でお支払い頂きますので、本サイト上の金額と、実際にお支払い頂く金額とが異なる場合があることを予めご了承ください。 住宅に関する賃料・管理費は非課税です。 当物件の入居者には借家人賠償保険に加入していただきます。 契約に保証会社をご利用いただく場合には、保証会社との契約締結並びに保証委託料のお支払をいただきます。 賃貸借契約が終了した場合、賃借人または居住者の使用状況や清掃状況にかかわらず、室内清掃(カーペット、壁、天井、建具及び設備機器を含む)費用を賃借人にご負担いただきます。 携帯電話の受信状況は、実際にご使用される携帯電話で室内から通話確認をお願い致します。 定期借家契約の場合の再契約についてはお問い合わせ下さい。尚、再契約が可能な場合は、別途再契約料等がかかります。 間取図・方位・写真・内装仕様など、本サイトの記載概要と現況が異なる場合は現況を優先させていただきます。また、家具付き等の表示がある場合を除き、写真中の家具・調度品などは物件に含まれません。 BS、CS、CATV等の各種放送の視聴の可否、視聴方法、料金形態、並びにインターネットの接続環境、料金形態は、物件別に異なりますので、各サービスの提供業者に直接ご確認下さるようお願いいたします。 設備、施設は別途契約や利用料金がかかるものもございますのでご確認をお願いいたします。 駐車場の空き状況についてはお問い合わせください。 本サイトにおける小学校区は、各自治体より出されている学区データを基に表示したものであり、該当小学校区を保証するものではありません。最新の小学校区に関しましては、各自治体へ直接ご確認ください。 掲載している物件が万が一成約の際はご了承ください。 東京都港区西麻布1-2-7 
株式会社 ケン・コーポレーション 
宅地建物取引業 国土交通大臣 (8) 第4372 号 
取引態様:仲介

recommend - brand

Brillia ist Tower 勝どきと同じブランドの高級賃貸マンション

  • Brillia Tower 代々木公園 CLASSY

    賃料
    30万円~72万円
    間取り
    1LDK+WIC~2LDK
    住所
    東京都渋谷区富ヶ谷1
    交通
    千代田線 代々木公園駅 徒歩2分 他
    竣工
    2018年11月
  • Brillia ist 池尻大橋

    賃料
    45万円~57万円
    間取り
    2LDK
    住所
    東京都目黒区大橋2
    交通
    田園都市線 池尻大橋駅 徒歩5分 他
    竣工
    2025年1月
ブリリアシリーズ一覧

recommend - area

Brillia ist Tower 勝どきと同じエリアの高級賃貸マンション

  • THE TOKYO TOWERS(賃貸専用部分)

    賃料
    29万円~48万円
    間取り
    1LDK~3LDK+SIC
    住所
    東京都中央区勝どき6
    交通
    都営大江戸線 勝どき駅 徒歩5分 他
    竣工
    2008年1月
  • リバーシティ21イーストタワーズ

    賃料
    20.9万円~52.3万円
    間取り
    1ROOM~3SLDK
    住所
    東京都中央区佃2
    交通
    有楽町線 月島駅 徒歩7分 他
    竣工
    1991年3月
勝どき・晴海・湾岸エリア一覧

recommend - station

Brillia ist Tower 勝どきと同じ駅の高級賃貸マンション

  • リバーシティ21イーストタワーズ

    賃料
    20.3万円
    間取り
    1ROOM
    住所
    東京都中央区佃2
    交通
    有楽町線 月島駅 徒歩6分 他
    竣工
    1988年4月
  • リバーシティ21イーストタワーズ

    賃料
    20.9万円~52.3万円
    間取り
    1ROOM~3SLDK
    住所
    東京都中央区佃2
    交通
    有楽町線 月島駅 徒歩7分 他
    竣工
    1991年3月

recommend - room

Brillia ist Tower 勝どき 26階(1LDK / 56.11㎡)と条件が近い高級賃貸マンションのお部屋

  • ANQI代々木公園前 2階 NEW

    賃料
    35.5万円 / 管理費:1.2万円
    間取り
    2LDK
    面積
    59.26㎡
    住所
    東京都渋谷区代々木5
    交通
    千代田線 代々木公園駅 徒歩8分 他
    部屋詳細
  • TAKANAWA GATEWAY CITY RESIDENCE 19階 NEW 新築

    賃料
    32.8万円 / 管理費:無し
    間取り
    1LDK
    面積
    53.10㎡
    住所
    東京都港区三田3
    交通
    山手線 高輪ゲートウェイ駅 徒歩9分 他
    部屋詳細
  • サンフル芝浦キャナルオーパス 9階 NEW

    賃料
    29万円 / 管理費:1.4万円
    間取り
    2LDK
    面積
    61.95㎡
    住所
    東京都港区芝浦2
    交通
    山手線 田町駅 徒歩10分 他
    部屋詳細
  • COMPOSITE新宿三丁目 5階 NEW 新築

    賃料
    34.4万円 / 管理費:2万円
    間取り
    3LDK
    面積
    57.31㎡
    住所
    東京都新宿区新宿6
    交通
    丸ノ内線 新宿三丁目駅 徒歩5分 他
    部屋詳細
検討中リストへ追加しました 右上のボタンからまとめて
確認することができます