ザ・パークハウス西新宿タワー60 18階 2017120260 | 東京都心の高級賃貸マンション [TOKYO RENT]

ザ・パークハウス西新宿タワー60 18階 2017120260の賃貸情報

賃料
35万円
管理費
2万円
間取り
2LDK
面積
59.51㎡
階数
18階
入居可能日
即入居可

西新宿に誕生した分譲タワーマンション。3線4駅利用可とアクセス良好。ゲストルーム、フィットネス、ジム、パーティールームなど充実した設備も魅力。

outline 物件概要・設備

建物名
ザ・パークハウス西新宿タワー60(建物ID: 185576 / 物件ID: 2017120260)
住所
東京都新宿区西新宿5
交通 / 駅徒歩
都営大江戸線 西新宿五丁目駅 徒歩9分
丸ノ内線 西新宿駅 徒歩9分
都営大江戸線 都庁前駅 徒歩10分
山手線 新宿駅 徒歩19分
※当該物件の最寄駅(路線)、バス停、およびそこまでの徒歩所要時間です。
賃料 / 管理費
35万円 / 2万円(坪単価: 20,555円)
敷金 / 礼金
2ヶ月 / 1ヶ月
契約期間
2年(定期借家契約)
更新料
-
その他費用
お問い合わせください
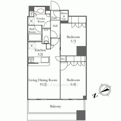
間取り / 面積
2LDK / 59.51㎡(18.00坪)
間取り詳細
洋室 6.4帖、洋室 5.7帖、リビングダイニング 10.2帖、キッチン 3.2帖、バルコニー
方位
北向き
階建 / 階数
地上60階地下2階建 / 18階部分
構造
鉄筋コンクリート造(制震構造)
総戸数
954戸
竣工年月
2017年8月
入居可能日
即入居可
入居諸条件
ペット不可、 
保険
借家人賠償保険に加入していただきます
駐輪場・バイク置場
駐輪場有り 550円(税込)(空き要確認)、 バイク置場有り 11,000円(税込)(空き要確認)
※詳細はお問い合わせください。
建物設備・施設
エレベーター、 オートロック、 防犯カメラ、 宅配BOX、 スポーツジム、 ゲストルーム、 スカイラウンジ(屋上庭園)、 ペット設備、 フロントサービス、 コンシェルジェサービス、 24時間有人管理
その他: 2F(パ-ティールーム兼ゲストルーム,CREATIVE SPEACE,ENGAWA(キッズルーム,和室),ミーティングスペース,フィットネスジム),44F(ゲストルーム「KEYAKI」「SPRING」、ビューラウンジ&バー「SKY」
※施設利用に対して別途ご利用料金がかかることがありますのでご確認ください。
部屋設備
クローゼット、 シューズインクローゼット、 シューズクローゼット、 エアコン、 給湯、 洗面所独立、 BT別、 室内洗濯機置場、 セキュリティシステム、 TVモニター付インターホン、 当社管理
備考
■退去時:室内清掃費1,320円(税込)/㎡■バルコニーを含み禁煙■保証会社利用必須(初回保証委託料:50%、月次保証委託料:保証対象月額の1%)
      
建物管理会社
三菱地所コミュニティ 株式会社
取り扱い会社
株式会社ケン・コーポレーション 飯田橋支店
取引形態
仲介
通学区域小学校
西新宿小学校 (約900m)
情報更新日
2026年5月14日
次回更新予定日
2026年5月28日

availability その他の空室一覧

ザ・パークハウス西新宿タワー60 空室部屋数:4 部屋
階数 間取り 面積 賃料
25階
2LDK+WIC
62.56㎡
36.5万円
new
22階
3LDK
72.95㎡
45万円
21階
2LDK+SIC
85.35㎡
48万円
57階
2LDK+WIC
89.31㎡
55万円
階数 間取り 面積 賃料 管理費 敷金・礼金 物件詳細
25階
2LDK+WIC
62.56㎡
36.5万円
無し
2ヶ月 / 1ヶ月
詳細
new
22階
3LDK
72.95㎡
45万円
無し
1ヶ月 / 1ヶ月
詳細
21階
2LDK+SIC
85.35㎡
48万円
1万円
2ヶ月 / 1ヶ月
詳細
57階
2LDK+WIC
89.31㎡
55万円
無し
2ヶ月 / 1ヶ月
詳細

map 地図

contact お問い合わせ

お問合せの際は物件名や物件番号をお伝えください。
ケン・コーポレーションの営業員が、お客様のご都合に合わせて物件をご案内いたします。

お問い合わせ・内覧予約はこちら
ザ・パークハウス西新宿タワー60 18階 物件番号:2017120260
0120-395-422
ケン・コーポレーション 飯田橋支店 ※「TOKYO RENTを見て」とお伝えください。
契約成立の場合、弊社に対して仲介手数料として賃料の1.1カ月分相当額のお支払いの承諾をお願いいたします。 間取り表記の詳細:数字=「居室数」、L=「リビングルーム」、D=「ダイニングルーム」、K=「キッチン」、S=「サービスルーム」、F=「ファミリールーム」を指します。 本サイト記載の金額のうち消費税課税となるものについては、支払時点で適用される税率により算出された金額でお支払い頂きますので、本サイト上の金額と、実際にお支払い頂く金額とが異なる場合があることを予めご了承ください。 住宅に関する賃料・管理費は非課税です。 当物件の入居者には借家人賠償保険に加入していただきます。 契約に保証会社をご利用いただく場合には、保証会社との契約締結並びに保証委託料のお支払をいただきます。 賃貸借契約が終了した場合、賃借人または居住者の使用状況や清掃状況にかかわらず、室内清掃(カーペット、壁、天井、建具及び設備機器を含む)費用を賃借人にご負担いただきます。 携帯電話の受信状況は、実際にご使用される携帯電話で室内から通話確認をお願い致します。 定期借家契約の場合の再契約についてはお問い合わせ下さい。尚、再契約が可能な場合は、別途再契約料等がかかります。 間取図・方位・写真・内装仕様など、本サイトの記載概要と現況が異なる場合は現況を優先させていただきます。また、家具付き等の表示がある場合を除き、写真中の家具・調度品などは物件に含まれません。 BS、CS、CATV等の各種放送の視聴の可否、視聴方法、料金形態、並びにインターネットの接続環境、料金形態は、物件別に異なりますので、各サービスの提供業者に直接ご確認下さるようお願いいたします。 設備、施設は別途契約や利用料金がかかるものもございますのでご確認をお願いいたします。 駐車場の空き状況についてはお問い合わせください。 本サイトにおける小学校区は、各自治体より出されている学区データを基に表示したものであり、該当小学校区を保証するものではありません。最新の小学校区に関しましては、各自治体へ直接ご確認ください。 掲載している物件が万が一成約の際はご了承ください。 東京都港区西麻布1-2-7 
株式会社 ケン・コーポレーション 
宅地建物取引業 国土交通大臣 (8) 第4372 号 
取引態様:仲介

recommend - brand

ザ・パークハウス西新宿タワー60と同じブランドの高級賃貸マンション

  • ザ・パークハウス千代田六番町

    賃料
    57万円~130万円
    間取り
    2LDK~3LDK
    住所
    東京都千代田区六番町7
    交通
    中央線 四ツ谷駅 徒歩5分 他
    竣工
    2025年8月
  • ザ・パークハウス愛宕虎ノ門

    賃料
    38万円~43.5万円
    間取り
    1LDK~2LDK
    住所
    東京都港区虎ノ門3
    交通
    日比谷線 神谷町駅 徒歩3分 他
    竣工
    2012年2月
ザ・パークハウスシリーズ一覧

recommend - area

ザ・パークハウス西新宿タワー60と同じエリアの高級賃貸マンション

  • セントラルパークタワー ラ・トゥール新宿

    賃料
    39万円~95万円
    間取り
    1R~2LDK
    住所
    東京都新宿区西新宿6
    交通
    都営大江戸線 都庁前駅 徒歩5分 他
    竣工
    2010年2月
  • ルフォンプログレ北新宿

    賃料
    29.1万円~41.5万円
    間取り
    1LDK+DEN~2LDK+WIC
    住所
    東京都新宿区北新宿1
    交通
    中央線 大久保駅 徒歩3分 他
    竣工
    2026年3月
西新宿エリア一覧

recommend - station

ザ・パークハウス西新宿タワー60と同じ駅の高級賃貸マンション

  • リビオメゾン新宿west

    賃料
    28.8万円~33.5万円
    間取り
    2LDK
    住所
    東京都新宿区西新宿7
    交通
    都営大江戸線 新宿西口駅 徒歩4分 他
    竣工
    2025年6月
  • MY TOWER RESIDENCE

    賃料
    29.8万円~47.5万円
    間取り
    1LDK~2LDK+SIC
    住所
    東京都渋谷区代々木1
    交通
    山手線 新宿駅 徒歩9分 他
    竣工
    2007年2月

recommend - room

ザ・パークハウス西新宿タワー60 18階(2LDK / 59.51㎡)と条件が近い高級賃貸マンションのお部屋

  • アクティ汐留 29階 NEW

    賃料
    35.8万円 / 管理費:1.1万円
    間取り
    2LDK+S
    面積
    69.51㎡
    住所
    東京都港区海岸1
    交通
    山手線 浜松町駅 徒歩4分 他
    部屋詳細
  • ANQI代々木公園前 2階 NEW

    賃料
    35.5万円 / 管理費:1.2万円
    間取り
    2LDK
    面積
    59.26㎡
    住所
    東京都渋谷区代々木5
    交通
    千代田線 代々木公園駅 徒歩8分 他
    部屋詳細
  • TAKANAWA GATEWAY CITY RESIDENCE 21階 NEW 新築

    賃料
    39.8万円 / 管理費:無し
    間取り
    1LDK+DEN
    面積
    62.45㎡
    住所
    東京都港区三田3
    交通
    山手線 高輪ゲートウェイ駅 徒歩9分 他
    部屋詳細
  • パークアクシス日本橋浜町 9階 NEW 申込あり

    賃料
    34.2万円 / 管理費:1.2万円
    間取り
    3LDK
    面積
    68.04㎡
    住所
    東京都中央区日本橋浜町1
    交通
    都営新宿線 浜町駅 徒歩4分 他
    部屋詳細
検討中リストへ追加しました 右上のボタンからまとめて
確認することができます