THE COURT 神宮外苑 9階 2020030732 | 東京都心の高級賃貸マンション [TOKYO RENT]

THE COURT 神宮外苑 9階 2020030732の賃貸情報 申込あり

賃料
44万円
管理費
無し
間取り
1LDK
面積
56.76㎡
階数
9階
入居可能日
2026年6月下旬予定

神宮外苑の再開発で誕生した分譲タワーマンション。新国立競技場目の前。コンシェルジュサービス,キッズルーム,パーティールーム等の共用施設も充実。プール,スポーツジムには使用条件がございます。お部屋毎にお問合せ下さい。

outline 物件概要・設備

建物名
THE COURT 神宮外苑(建物ID: 192326 / 物件ID: 2020030732)
住所
東京都渋谷区神宮前2
交通 / 駅徒歩
銀座線 外苑前駅 徒歩8分
都営大江戸線 国立競技場駅 徒歩11分
総武線 千駄ヶ谷駅 徒歩13分
副都心線 北参道駅 徒歩13分
※当該物件の最寄駅(路線)、バス停、およびそこまでの徒歩所要時間です。
賃料 / 管理費
44万円 / 無し(坪単価: 25,641円)
敷金 / 礼金
1ヶ月 / 2ヶ月
契約期間
2年(定期借家契約)
更新料
-
その他費用
お問い合わせください
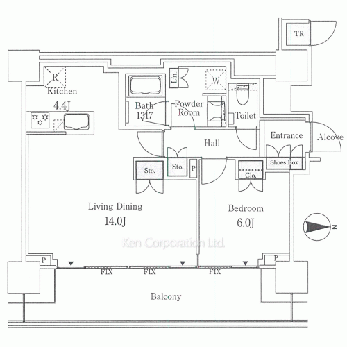
間取り / 面積
1LDK / 56.76㎡(17.16坪)
間取り詳細
洋室 6帖、リビングダイニング 14帖、キッチン 4.4帖、バルコニー
方位
東向き
階建 / 階数
地上23階地下1階建 / 9階部分
構造
鉄筋コンクリート造
総戸数
409戸
竣工年月
2020年1月
入居可能日
2026年6月下旬予定
入居諸条件
ペット不可、 住居兼事務所不可
保険
借家人賠償保険に加入していただきます
駐輪場・バイク置場
駐輪場有り 賃料に含む、 バイク置場有り 月額9,000円/台・ミニバイク月額5,000円/台
※詳細はお問い合わせください。
建物設備・施設
エレベーター、 オートロック、 防犯カメラ、 宅配BOX、 スポーツジム、 ゲストルーム、 ペット設備、 フロントサービス、 コンシェルジェサービス、 24時間有人管理
その他: 3階:ゲストルーム・キッズルーム・パーティールーム2階:ガーデンラウンジ
※施設利用に対して別途ご利用料金がかかることがありますのでご確認ください。
部屋設備
カウンターキッチン、 システムキッチン、 グリル付き、 コンロ3口、 ガスレンジ、 食洗機、 一部フローリング、 クローゼット、 シューズクローゼット、 エアコン、 床暖房、 追焚機能付き、 浴室乾燥機、 給湯、 洗面所独立、 洗浄機能付便座、 BT別、 室内洗濯機置場、 セキュリティシステム、 TVモニター付インターホン、 CATV、 BS、 CS
その他: ■トランクルーム:最新の空き状況、料金等はご確認下さい。
備考
■鍵交換費用が別途発生致します。■口座振替事務手数料が別途発生致します。■エアコンクリーニング費用が別途発生致します。■保証会社必須。【月次型】初回保証料:契約時月額賃料等の40%、継続保証料:毎月月額賃料等の1%(※保証委託最低金額 初回5万円、継続 月次1000円)。【年次型】初回保証料:契約時月額賃料等の50%、継続保証料:毎年1万円。※契約型は保証会社による。
      
建物管理会社
三井不動産レジデンシャルサービス 株式会社
取り扱い会社
株式会社ケン・コーポレーション 国内部
取引形態
仲介
通学区域小学校
神宮前小学校 (約1,000m)
情報更新日
2026年5月28日
次回更新予定日
2026年6月11日

map 地図

contact お問い合わせ

お問合せの際は物件名や物件番号をお伝えください。
ケン・コーポレーションの営業員が、お客様のご都合に合わせて物件をご案内いたします。

お問い合わせ・内覧予約はこちら
THE COURT 神宮外苑 9階 物件番号:2020030732
0120-512-234
ケン・コーポレーション 国内部 ※「TOKYO RENTを見て」とお伝えください。
契約成立の場合、弊社に対して仲介手数料として賃料の1.1カ月分相当額のお支払いの承諾をお願いいたします。 間取り表記の詳細:数字=「居室数」、L=「リビングルーム」、D=「ダイニングルーム」、K=「キッチン」、S=「サービスルーム」、F=「ファミリールーム」を指します。 本サイト記載の金額のうち消費税課税となるものについては、支払時点で適用される税率により算出された金額でお支払い頂きますので、本サイト上の金額と、実際にお支払い頂く金額とが異なる場合があることを予めご了承ください。 住宅に関する賃料・管理費は非課税です。 当物件の入居者には借家人賠償保険に加入していただきます。 契約に保証会社をご利用いただく場合には、保証会社との契約締結並びに保証委託料のお支払をいただきます。 賃貸借契約が終了した場合、賃借人または居住者の使用状況や清掃状況にかかわらず、室内清掃(カーペット、壁、天井、建具及び設備機器を含む)費用を賃借人にご負担いただきます。 携帯電話の受信状況は、実際にご使用される携帯電話で室内から通話確認をお願い致します。 定期借家契約の場合の再契約についてはお問い合わせ下さい。尚、再契約が可能な場合は、別途再契約料等がかかります。 間取図・方位・写真・内装仕様など、本サイトの記載概要と現況が異なる場合は現況を優先させていただきます。また、家具付き等の表示がある場合を除き、写真中の家具・調度品などは物件に含まれません。 BS、CS、CATV等の各種放送の視聴の可否、視聴方法、料金形態、並びにインターネットの接続環境、料金形態は、物件別に異なりますので、各サービスの提供業者に直接ご確認下さるようお願いいたします。 設備、施設は別途契約や利用料金がかかるものもございますのでご確認をお願いいたします。 駐車場の空き状況についてはお問い合わせください。 本サイトにおける小学校区は、各自治体より出されている学区データを基に表示したものであり、該当小学校区を保証するものではありません。最新の小学校区に関しましては、各自治体へ直接ご確認ください。 掲載している物件が万が一成約の際はご了承ください。 東京都港区西麻布1-2-7 
株式会社 ケン・コーポレーション 
宅地建物取引業 国土交通大臣 (8) 第4372 号 
取引態様:仲介

recommend - area

THE COURT 神宮外苑と同じエリアの高級賃貸マンション

  • Urban Breeze 恵比寿

    賃料
    34.1万円~36.7万円
    間取り
    1LDK+WIC~2LDK+WIC
    住所
    東京都渋谷区東3
    交通
    日比谷線 恵比寿駅 徒歩7分 他
    竣工
    2026年3月
  • ウィズ原宿レジデンス

    賃料
    37万円~360万円
    間取り
    1K+DEN~3LDK
    住所
    東京都渋谷区神宮前1
    交通
    山手線 原宿駅 徒歩2分 他
    竣工
    2020年2月
渋谷エリア一覧
  • クラス青山

    賃料
    35.4万円~174.5万円
    間取り
    1LDK~3LDK
    住所
    東京都港区北青山3
    交通
    半蔵門線 表参道駅 徒歩7分 他
    竣工
    2020年4月
  • パークアクシス青山一丁目タワー

    賃料
    45万円~122万円
    間取り
    1ROOM~3LDK
    住所
    東京都港区南青山1
    交通
    都営大江戸線 青山一丁目駅 徒歩3分 他
    竣工
    2007年1月
表参道エリア一覧

recommend - station

THE COURT 神宮外苑と同じ駅の高級賃貸マンション

  • ルフィット神宮北参道

    賃料
    29万円~34.5万円
    間取り
    1LDK
    住所
    東京都渋谷区千駄ヶ谷4
    交通
    副都心線 北参道駅 徒歩1分 他
    竣工
    2005年2月
  • オーパスレジデンス南青山

    賃料
    31万円~57万円
    間取り
    1LDK~2LDK
    住所
    東京都港区南青山4
    交通
    銀座線 外苑前駅 徒歩7分 他
    竣工
    2024年3月

recommend - room

THE COURT 神宮外苑 9階(1LDK / 56.76㎡)と条件が近い高級賃貸マンションのお部屋

  • ブランズ芝浦 10階 NEW 新築

    賃料
    38万円 / 管理費:2万円
    間取り
    2LDK
    面積
    55.74㎡
    住所
    東京都港区芝浦4
    交通
    山手線 田町駅 徒歩14分 他
    部屋詳細
  • 麻布東町マンション 4階 NEW

    賃料
    40万円 / 管理費:無し
    間取り
    2LDK
    面積
    67.21㎡
    住所
    東京都港区南麻布1
    交通
    南北線 麻布十番駅 徒歩5分 他
    部屋詳細
  • ロイヤルパークス品川 5階 NEW

    賃料
    39万円 / 管理費:2万円
    間取り
    2LDK
    面積
    64.30㎡
    住所
    東京都港区港南3
    交通
    山手線 品川駅 徒歩11分 他
    部屋詳細
  • GRAN PASEO 西麻布Ⅱ 7階 NEW

    賃料
    41.8万円 / 管理費:2万円
    間取り
    2LDK+WIC
    面積
    58.26㎡
    住所
    東京都港区西麻布2
    交通
    千代田線 乃木坂駅 徒歩10分 他
    部屋詳細
検討中リストへ追加しました 右上のボタンからまとめて
確認することができます