HARUMI FLAG SUN VILLAGE F棟 12階 2024010714 | 東京都心の高級賃貸マンション [TOKYO RENT]

HARUMI FLAG SUN VILLAGE F棟 12階 2024010714の賃貸情報

賃料
42.4万円
管理費
無し
間取り
3LDK
面積
86.45㎡
階数
12階
入居可能日
2026年6月下旬予定

outline 物件概要・設備

建物名
HARUMI FLAG SUN VILLAGE(建物ID: 207480 / 物件ID: 2024010714)
住所
東京都中央区晴海5
交通 / 駅徒歩
都営大江戸線 勝どき駅 徒歩18分
都営大江戸線 勝どき駅 バス10分 ほっとプラザはるみ前バス停 徒歩6分
※当該物件の最寄駅(路線)、バス停、およびそこまでの徒歩所要時間です。
賃料 / 管理費
42.4万円 / 無し(坪単価: 16,214円)
敷金 / 礼金
1ヶ月 / 2ヶ月
契約期間
2年(定期借家契約)
更新料
-
その他費用
お問い合わせください
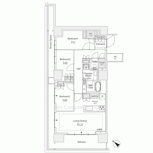
間取り / 面積
3LDK / 86.45㎡(26.15坪)
間取り詳細
洋室 7.1帖、洋室 5帖、洋室 5帖、リビングダイニング 13.2帖、キッチン 4.1帖、バルコニー(21㎡) / 2面バルコニー
方位
南西向き
階建 / 階数
地上18階地下1階建 / 12階部分
構造
鉄筋コンクリート造
総戸数
883戸
竣工年月
2023年11月
入居可能日
2026年6月下旬予定
入居諸条件
ペット不可、 住居兼事務所不可
保険
借家人賠償保険に加入していただきます
建物設備・施設
エレベーター、 オートロック、 宅配BOX、 敷地内ゴミ置場
部屋設備
カウンターキッチン、 グリル付き、 コンロ3口、 ガスレンジ、 食洗機、 一部フローリング、 クローゼット、 ウォークインクローゼット、 シューズクローゼット、 エアコン、 床暖房、 追焚機能付き、 浴室乾燥機、 給湯、 洗面所独立、 BT別、 室内洗濯機置場、 インターネット専用線(光)
その他
2面採光
備考
■口座振替事務手数料が別途発生致します。■鍵交換費用が別途発生致します。■保証会社必須。【月次型】初回保証料:契約時月額賃料等の40%、継続保証料:毎月月額賃料等の1%(※保証委託最低金額 初回5万円、継続 月次1000円)。【年次型】初回保証料:契約時月額賃料等の50%、継続保証料:毎年1万円。※契約型は保証会社による。
      
建物管理会社
三菱地所コミュニティ 株式会社
取り扱い会社
株式会社ケン・コーポレーション 銀座湾岸支店
取引形態
仲介
通学区域小学校
晴海西小学校 (約400m)
情報更新日
2026年4月30日
次回更新予定日
2026年5月14日

availability その他の空室一覧

HARUMI FLAG PARK VILLAGE E棟 空室部屋数:1 部屋
階数 間取り 面積 賃料
9階
3LDK
90.49㎡
43万円
階数 間取り 面積 賃料 管理費 敷金・礼金 物件詳細
9階
3LDK
90.49㎡
43万円
2万円
2ヶ月 / 1ヶ月
詳細
HARUMI FLAG SEA VILLAGE C棟 空室部屋数:1 部屋
階数 間取り 面積 賃料
11階
3LDK
123.01㎡
73.2万円
階数 間取り 面積 賃料 管理費 敷金・礼金 物件詳細
11階
3LDK
123.01㎡
73.2万円
無し
2ヶ月 / 1ヶ月
詳細
HARUMI FLAG SEA VILLAGE A棟 空室部屋数:1 部屋
階数 間取り 面積 賃料
4階
3LDK
90.67㎡
44万円
階数 間取り 面積 賃料 管理費 敷金・礼金 物件詳細
4階
3LDK
90.67㎡
44万円
無し
1ヶ月 / 1ヶ月
詳細
HARUMI FLAG PARK VILLAGE T棟 空室部屋数:4 部屋
階数 間取り 面積 賃料
3階
3LDK
74.33㎡
32万円
13階
3LDK
82.44㎡
37万円
26階
3LDK
72.06㎡
39.5万円
50階
3LDK+WIC
117.27㎡
110万円
階数 間取り 面積 賃料 管理費 敷金・礼金 物件詳細
3階
3LDK
74.33㎡
32万円
3万円
1ヶ月 / 1ヶ月
詳細
13階
3LDK
82.44㎡
37万円
3万円
1ヶ月 / 1ヶ月
詳細
26階
3LDK
72.06㎡
39.5万円
2.5万円
1ヶ月 / 1ヶ月
詳細
50階
3LDK+WIC
117.27㎡
110万円
無し
2ヶ月 / 1ヶ月
詳細
HARUMI FLAG SUN VILLAGE T棟 空室部屋数:3 部屋
階数 間取り 面積 賃料
11階
3LDK
71.51㎡
35万円
44階
3LDK
78.08㎡
45万円
23階
3LDK
83.2㎡
58万円
階数 間取り 面積 賃料 管理費 敷金・礼金 物件詳細
11階
3LDK
71.51㎡
35万円
3万円
1ヶ月 / 1ヶ月
詳細
44階
3LDK
78.08㎡
45万円
3万円
2ヶ月 / 1ヶ月
詳細
23階
3LDK
83.2㎡
58万円
3万円
1ヶ月 / 1ヶ月
詳細

map 地図

contact お問い合わせ

お問合せの際は物件名や物件番号をお伝えください。
ケン・コーポレーションの営業員が、お客様のご都合に合わせて物件をご案内いたします。

お問い合わせ・内覧予約はこちら
HARUMI FLAG SUN VILLAGE F棟 12階 物件番号:2024010714
0120-781-078
ケン・コーポレーション 銀座湾岸支店 ※「TOKYO RENTを見て」とお伝えください。
契約成立の場合、弊社に対して仲介手数料として賃料の1.1カ月分相当額のお支払いの承諾をお願いいたします。 間取り表記の詳細:数字=「居室数」、L=「リビングルーム」、D=「ダイニングルーム」、K=「キッチン」、S=「サービスルーム」、F=「ファミリールーム」を指します。 本サイト記載の金額のうち消費税課税となるものについては、支払時点で適用される税率により算出された金額でお支払い頂きますので、本サイト上の金額と、実際にお支払い頂く金額とが異なる場合があることを予めご了承ください。 住宅に関する賃料・管理費は非課税です。 当物件の入居者には借家人賠償保険に加入していただきます。 契約に保証会社をご利用いただく場合には、保証会社との契約締結並びに保証委託料のお支払をいただきます。 賃貸借契約が終了した場合、賃借人または居住者の使用状況や清掃状況にかかわらず、室内清掃(カーペット、壁、天井、建具及び設備機器を含む)費用を賃借人にご負担いただきます。 携帯電話の受信状況は、実際にご使用される携帯電話で室内から通話確認をお願い致します。 定期借家契約の場合の再契約についてはお問い合わせ下さい。尚、再契約が可能な場合は、別途再契約料等がかかります。 間取図・方位・写真・内装仕様など、本サイトの記載概要と現況が異なる場合は現況を優先させていただきます。また、家具付き等の表示がある場合を除き、写真中の家具・調度品などは物件に含まれません。 BS、CS、CATV等の各種放送の視聴の可否、視聴方法、料金形態、並びにインターネットの接続環境、料金形態は、物件別に異なりますので、各サービスの提供業者に直接ご確認下さるようお願いいたします。 設備、施設は別途契約や利用料金がかかるものもございますのでご確認をお願いいたします。 駐車場の空き状況についてはお問い合わせください。 本サイトにおける小学校区は、各自治体より出されている学区データを基に表示したものであり、該当小学校区を保証するものではありません。最新の小学校区に関しましては、各自治体へ直接ご確認ください。 掲載している物件が万が一成約の際はご了承ください。 東京都港区西麻布1-2-7 
株式会社 ケン・コーポレーション 
宅地建物取引業 国土交通大臣 (8) 第4372 号 
取引態様:仲介

recommend - brand

HARUMI FLAG SUN VILLAGEと同じブランドの高級賃貸マンション

  • HARUMI FLAG PARK VILLAGE

    賃料
    32万円~110万円
    間取り
    3LDK
    住所
    東京都中央区晴海5
    交通
    都営大江戸線 勝どき駅 徒歩18分 他
    竣工
    2025年8月
  • HARUMI FLAG SUN VILLAGE

    賃料
    35万円~58万円
    間取り
    3LDK
    住所
    東京都中央区晴海5
    交通
    都営大江戸線 勝どき駅 徒歩21分 他
    竣工
    2025年9月

recommend - area

HARUMI FLAG SUN VILLAGEと同じエリアの高級賃貸マンション

  • Brillia ist Tower 勝どき

    賃料
    25.5万円~56.8万円
    間取り
    1LDK+WIC~3LDK+WIC
    住所
    東京都中央区勝どき1
    交通
    都営大江戸線 勝どき駅 徒歩3分 他
    竣工
    2011年1月
  • THE TOKYO TOWERS(賃貸専用部分)

    賃料
    29万円~48万円
    間取り
    1LDK~3LDK+SIC
    住所
    東京都中央区勝どき6
    交通
    都営大江戸線 勝どき駅 徒歩5分 他
    竣工
    2008年1月
勝どき・晴海・湾岸エリア一覧

recommend - station

HARUMI FLAG SUN VILLAGEと同じ駅の高級賃貸マンション

  • Brillia ist Tower 勝どき

    賃料
    25.5万円~56.8万円
    間取り
    1LDK+WIC~3LDK+WIC
    住所
    東京都中央区勝どき1
    交通
    都営大江戸線 勝どき駅 徒歩3分 他
    竣工
    2011年1月
  • パークタワー勝どきミッド

    賃料
    28.3万円~37.4万円
    間取り
    1LDK
    住所
    東京都中央区勝どき4
    交通
    都営大江戸線 勝どき駅 徒歩1分 他
    竣工
    2023年8月

recommend - room

HARUMI FLAG SUN VILLAGE 12階(3LDK / 86.45㎡)と条件が近い高級賃貸マンションのお部屋

  • HF目黒行人坂レジデンス 1階 NEW

    賃料
    46.2万円 / 管理費:1.2万円
    間取り
    2LDK
    面積
    79.29㎡
    住所
    東京都目黒区下目黒1
    交通
    山手線 目黒駅 徒歩5分 他
    部屋詳細
  • パレスサイド三番町 3階 NEW

    賃料
    43.3万円 / 管理費:2.7万円
    間取り
    2LDK
    面積
    80.25㎡
    住所
    東京都千代田区三番町3
    交通
    半蔵門線 半蔵門駅 徒歩6分 他
    部屋詳細
  • ZOOM日本橋馬喰町 13階 NEW 申込あり

    賃料
    38万円 / 管理費:1.5万円
    間取り
    3LDK
    面積
    94.14㎡
    住所
    東京都千代田区東神田1
    交通
    総武線 馬喰町駅 徒歩3分 他
    部屋詳細
  • パークタワー芝浦ベイワードオーシャンウィング 21階 NEW

    賃料
    43万円 / 管理費:無し
    間取り
    2LDK+WIC
    面積
    83.20㎡
    住所
    東京都港区芝浦2
    交通
    山手線 田町駅 徒歩8分 他
    部屋詳細
検討中リストへ追加しました 右上のボタンからまとめて
確認することができます