HARUMI FLAG SUN VILLAGE T棟 49階 2025080282 | 東京都心の高級賃貸マンション [TOKYO RENT]

HARUMI FLAG SUN VILLAGE T棟 49階 2025080282の賃貸情報

賃料
81万円
管理費
4万円
間取り
3LDK
面積
94.49㎡
階数
49階
入居可能日
要相談

新築分譲タワーマンション。東京湾が望めます。ハイルーフ駐車場確保済(契約必須) プレミアフロアにつき最高天井高2900mm.

outline 物件概要・設備

建物名
HARUMI FLAG SUN VILLAGE(建物ID: 210368 / 物件ID: 2025080282)
住所
東京都中央区晴海5
交通 / 駅徒歩
都営大江戸線 勝どき駅 徒歩19分
※当該物件の最寄駅(路線)、バス停、およびそこまでの徒歩所要時間です。
賃料 / 管理費
81万円 / 4万円(坪単価: 29,741円)
敷金 / 礼金
1ヶ月 / 1ヶ月
契約期間
5年(定期借家契約)
更新料
-
その他費用
お問い合わせください
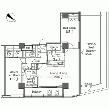
間取り / 面積
3LDK / 94.49㎡(28.58坪)
間取り詳細
洋室 8.2帖、洋室 6帖、洋室 6帖、リビングダイニング 14.5帖、キッチン 4.8帖、バルコニー
方位
西向き
階建 / 階数
地上50階地下1階建 / 49階部分
構造
鉄筋コンクリート造
総戸数
733戸
竣工年月
2025年9月
入居可能日
要相談
入居諸条件
ペット相談(敷金1ヵ月積み増し、償却1ヵ月)、 住居兼事務所不可、 楽器相談
保険
借家人賠償保険に加入していただきます
駐車場
有り(35,750円)機械式 ※1台まで
※詳細はお問い合わせください。
駐輪場・バイク置場
駐輪場有り ■最新の空区画情報、料金等はお問い合わせ下さい。、 バイク置場有り ■最新の空区画情報、料金等はお問い合わせ下さい。
※詳細はお問い合わせください。
建物設備・施設
エレベーター、 オートロック、 防犯カメラ、 宅配BOX、 ゲストルーム、 スカイラウンジ(屋上庭園)、 コンシェルジェサービス、 フロア別ゴミ置き場、 敷地内ゴミ置場
※施設利用に対して別途ご利用料金がかかることがありますのでご確認ください。
部屋設備
カウンターキッチン、 システムキッチン、 グリル付き、 コンロ3口、 ガスレンジ、 浄水器、 ディスポーザー、 食洗機、 全面フローリング、 クローゼット、 ウォークインクローゼット、 シューズインクローゼット、 シューズクローゼット、 エアコン、 床暖房、 24時間換気システム、 追焚機能付き、 浴室乾燥機、 給湯、 洗面所独立、 シャンプードレッサー、 洗浄機能付便座、 BT別、 室内洗濯機置場、 オーシャンビュー、 ダブルロックキー、 ディンプルキー、 インターネット専用線(光)、 CATV、 BS、 CS
その他
眺望良好
備考
■保証料:初回総額賃料50% ■1年未満解約時1ケ月の違約金■退去時清掃費用207,900円(税込)■解約2ケ月前2ヶ月前予告。駐車場契約必須
      
建物管理会社
三菱地所コミュニティ 株式会社
取り扱い会社
株式会社ケン・コーポレーション 銀座湾岸支店
取引形態
仲介
通学区域小学校
晴海西小学校 (約300m)
情報更新日
2026年3月16日
次回更新予定日
2026年3月30日

availability その他の空室一覧

HARUMI FLAG SEA VILLAGE A棟 空室部屋数:1 部屋
階数 間取り 面積 賃料
4階
4LDK
115.14㎡
55万円
階数 間取り 面積 賃料 管理費 敷金・礼金 物件詳細
4階
4LDK
115.14㎡
55万円
無し
2ヶ月 / 1ヶ月
詳細
HARUMI FLAG SUN VILLAGE D棟 空室部屋数:1 部屋
階数 間取り 面積 賃料
new
9階
2LDK
61.06㎡
33.6万円
階数 間取り 面積 賃料 管理費 敷金・礼金 物件詳細
new
9階
2LDK
61.06㎡
33.6万円
無し
1ヶ月 / 2ヶ月
詳細
HARUMI FLAG PORT VILLAGE B棟 空室部屋数:10 部屋
階数 間取り 面積 賃料
2階
3LDK
68.52㎡
29.8万円
6階
2LDK
56.48㎡
30万円
17階
1LDK
62.41㎡
30.5万円
9階
3LDK
66.15㎡
31.5万円
11階
3LDK
68.52㎡
31.8万円
2階
3LDK
75.16㎡
32.2万円
4階
3LDK
75.16㎡
33万円
16階
2LDK
65.56㎡
33.5万円
16階
3LDK
71.14㎡
34万円
16階
3LDK
84.56㎡
38万円
階数 間取り 面積 賃料 管理費 敷金・礼金 物件詳細
2階
3LDK
68.52㎡
29.8万円
2万円
1ヶ月 / 0ヶ月
詳細
6階
2LDK
56.48㎡
30万円
2万円
1ヶ月 / 0ヶ月
詳細
17階
1LDK
62.41㎡
30.5万円
1.5万円
1ヶ月 / 0ヶ月
詳細
9階
3LDK
66.15㎡
31.5万円
2万円
1ヶ月 / 0ヶ月
詳細
11階
3LDK
68.52㎡
31.8万円
2万円
1ヶ月 / 0ヶ月
詳細
2階
3LDK
75.16㎡
32.2万円
2万円
1ヶ月 / 0ヶ月
詳細
4階
3LDK
75.16㎡
33万円
2万円
1ヶ月 / 0ヶ月
詳細
16階
2LDK
65.56㎡
33.5万円
2万円
1ヶ月 / 0ヶ月
詳細
16階
3LDK
71.14㎡
34万円
2万円
1ヶ月 / 0ヶ月
詳細
16階
3LDK
84.56㎡
38万円
2万円
1ヶ月 / 0ヶ月
詳細
HARUMI FLAG PARK VILLAGE T棟 空室部屋数:4 部屋
階数 間取り 面積 賃料
24階
3LDK
71.45㎡
38万円
26階
3LDK
72.06㎡
39.5万円
13階
3LDK
82.44㎡
40万円
19階
3LDK+WIC
85.83㎡
46万円
階数 間取り 面積 賃料 管理費 敷金・礼金 物件詳細
24階
3LDK
71.45㎡
38万円
2万円
1ヶ月 / 1ヶ月
詳細
26階
3LDK
72.06㎡
39.5万円
2.5万円
1ヶ月 / 1ヶ月
詳細
13階
3LDK
82.44㎡
40万円
3万円
1ヶ月 / 1ヶ月
詳細
19階
3LDK+WIC
85.83㎡
46万円
無し
1ヶ月 / 1ヶ月
詳細
HARUMI FLAG PORT VILLAGE A棟 空室部屋数:18 部屋
階数 間取り 面積 賃料
2階
3LDK
66.54㎡
29.2万円
4階
3LDK
66.54㎡
29.8万円
4階
2LDK
61.77㎡
30万円
5階
3LDK
66.54㎡
30万円
8階
2LDK
61.77㎡
30.8万円
16階
2LDK
58.85㎡
31万円
10階
2LDK
61.77㎡
31万円
16階
2LDK
58.85㎡
31万円
10階
3LDK
66.54㎡
31.5万円
12階
3LDK
66.54㎡
32万円
16階
2LDK
61.76㎡
33万円
16階
2LDK
65.56㎡
33.5万円
17階
1LDK
65.35㎡
34万円
17階
2LDK
65.56㎡
34万円
11階
3LDK
75.71㎡
34.4万円
14階
3LDK
74.12㎡
34.5万円
14階
3LDK
75.71㎡
34.9万円
16階
3LDK
103.03㎡
54.4万円
階数 間取り 面積 賃料 管理費 敷金・礼金 物件詳細
2階
3LDK
66.54㎡
29.2万円
2万円
1ヶ月 / 0ヶ月
詳細
4階
3LDK
66.54㎡
29.8万円
2万円
1ヶ月 / 0ヶ月
詳細
4階
2LDK
61.77㎡
30万円
2万円
1ヶ月 / 0ヶ月
詳細
5階
3LDK
66.54㎡
30万円
2万円
1ヶ月 / 0ヶ月
詳細
8階
2LDK
61.77㎡
30.8万円
2万円
1ヶ月 / 0ヶ月
詳細
16階
2LDK
58.85㎡
31万円
2万円
1ヶ月 / 0ヶ月
詳細
10階
2LDK
61.77㎡
31万円
2万円
1ヶ月 / 0ヶ月
詳細
16階
2LDK
58.85㎡
31万円
2万円
1ヶ月 / 0ヶ月
詳細
10階
3LDK
66.54㎡
31.5万円
2万円
1ヶ月 / 0ヶ月
詳細
12階
3LDK
66.54㎡
32万円
2万円
1ヶ月 / 0ヶ月
詳細
16階
2LDK
61.76㎡
33万円
2万円
1ヶ月 / 0ヶ月
詳細
16階
2LDK
65.56㎡
33.5万円
2万円
1ヶ月 / 0ヶ月
詳細
17階
1LDK
65.35㎡
34万円
1.5万円
1ヶ月 / 0ヶ月
詳細
17階
2LDK
65.56㎡
34万円
2万円
1ヶ月 / 0ヶ月
詳細
11階
3LDK
75.71㎡
34.4万円
2万円
1ヶ月 / 0ヶ月
詳細
14階
3LDK
74.12㎡
34.5万円
2万円
1ヶ月 / 0ヶ月
詳細
14階
3LDK
75.71㎡
34.9万円
2万円
1ヶ月 / 0ヶ月
詳細
16階
3LDK
103.03㎡
54.4万円
2万円
1ヶ月 / 0ヶ月
詳細
HARUMI FLAG SUN VILLAGE T棟 空室部屋数:4 部屋
階数 間取り 面積 賃料
11階
3LDK
71.51㎡
35万円
46階
3LDK
70.34㎡
43万円
new
50階
2LDK
87.24㎡
60万円
47階
3LDK
86.88㎡
67万円
階数 間取り 面積 賃料 管理費 敷金・礼金 物件詳細
11階
3LDK
71.51㎡
35万円
3万円
1ヶ月 / 1ヶ月
詳細
46階
3LDK
70.34㎡
43万円
無し
1ヶ月 / 1ヶ月
詳細
new
50階
2LDK
87.24㎡
60万円
無し
1ヶ月 / 1ヶ月
詳細
47階
3LDK
86.88㎡
67万円
3万円
1ヶ月 / 1ヶ月
詳細

map 地図

contact お問い合わせ

お問合せの際は物件名や物件番号をお伝えください。
ケン・コーポレーションの営業員が、お客様のご都合に合わせて物件をご案内いたします。

お問い合わせ・内覧予約はこちら
HARUMI FLAG SUN VILLAGE T棟 49階 物件番号:2025080282
0120-781-078
ケン・コーポレーション 銀座湾岸支店 ※「TOKYO RENTを見て」とお伝えください。
契約成立の場合、弊社に対して仲介手数料として賃料の1.1カ月分相当額のお支払いの承諾をお願いいたします。 間取り表記の詳細:数字=「居室数」、L=「リビングルーム」、D=「ダイニングルーム」、K=「キッチン」、S=「サービスルーム」、F=「ファミリールーム」を指します。 本サイト記載の金額のうち消費税課税となるものについては、支払時点で適用される税率により算出された金額でお支払い頂きますので、本サイト上の金額と、実際にお支払い頂く金額とが異なる場合があることを予めご了承ください。 住宅に関する賃料・管理費は非課税です。 当物件の入居者には借家人賠償保険に加入していただきます。 契約に保証会社をご利用いただく場合には、保証会社との契約締結並びに保証委託料のお支払をいただきます。 賃貸借契約が終了した場合、賃借人または居住者の使用状況や清掃状況にかかわらず、室内清掃(カーペット、壁、天井、建具及び設備機器を含む)費用を賃借人にご負担いただきます。 携帯電話の受信状況は、実際にご使用される携帯電話で室内から通話確認をお願い致します。 定期借家契約の場合の再契約についてはお問い合わせ下さい。尚、再契約が可能な場合は、別途再契約料等がかかります。 間取図・方位・写真・内装仕様など、本サイトの記載概要と現況が異なる場合は現況を優先させていただきます。また、家具付き等の表示がある場合を除き、写真中の家具・調度品などは物件に含まれません。 BS、CS、CATV等の各種放送の視聴の可否、視聴方法、料金形態、並びにインターネットの接続環境、料金形態は、物件別に異なりますので、各サービスの提供業者に直接ご確認下さるようお願いいたします。 設備、施設は別途契約や利用料金がかかるものもございますのでご確認をお願いいたします。 駐車場の空き状況についてはお問い合わせください。 本サイトにおける小学校区は、各自治体より出されている学区データを基に表示したものであり、該当小学校区を保証するものではありません。最新の小学校区に関しましては、各自治体へ直接ご確認ください。 掲載している物件が万が一成約の際はご了承ください。 東京都港区西麻布1-2-7 
株式会社 ケン・コーポレーション 
宅地建物取引業 国土交通大臣 (8) 第4372 号 
取引態様:仲介

recommend - brand

HARUMI FLAG SUN VILLAGEと同じブランドの高級賃貸マンション

  • HARUMI FLAG PORT VILLAGE

    賃料
    29.2万円~54.4万円
    間取り
    1LDK~3LDK
    住所
    東京都中央区晴海5
    交通
    都営大江戸線 勝どき駅 徒歩12分
    竣工
    2024年1月
  • HARUMI FLAG PORT VILLAGE

    賃料
    29.8万円~38万円
    間取り
    1LDK~3LDK
    住所
    東京都中央区晴海5
    交通
    都営大江戸線 勝どき駅 徒歩12分
    竣工
    2024年1月

recommend - area

HARUMI FLAG SUN VILLAGEと同じエリアの高級賃貸マンション

  • THE TOKYO TOWERS(賃貸専用部分)

    賃料
    29.8万円~48万円
    間取り
    1LDK~3LDK
    住所
    東京都中央区勝どき6
    交通
    都営大江戸線 勝どき駅 徒歩5分 他
    竣工
    2008年1月
  • サンライズ茅場町

    賃料
    間取り
    住所
    東京都中央区新川2
    交通
    日比谷線 茅場町駅 徒歩4分 他
    竣工
    2026年3月
勝どき・晴海・湾岸エリア一覧

recommend - station

HARUMI FLAG SUN VILLAGEと同じ駅の高級賃貸マンション

  • Brillia ist Tower 勝どき

    賃料
    22.9万円~48.8万円
    間取り
    STUDIO+WIC~2LDK+SIC
    住所
    東京都中央区勝どき1
    交通
    都営大江戸線 勝どき駅 徒歩3分 他
    竣工
    2011年1月
  • HARUMI FLAG PORT VILLAGE

    賃料
    29.2万円~54.4万円
    間取り
    1LDK~3LDK
    住所
    東京都中央区晴海5
    交通
    都営大江戸線 勝どき駅 徒歩12分
    竣工
    2024年1月

recommend - room

HARUMI FLAG SUN VILLAGE 49階(3LDK / 94.49㎡)と条件が近い高級賃貸マンションのお部屋

  • ブランズ六本木飯倉片町 3階

    賃料
    86万円 / 管理費:2万円
    間取り
    2LDK
    面積
    96.00㎡
    住所
    東京都港区六本木5
    交通
    日比谷線 六本木駅 徒歩7分 他
    部屋詳細
  • パークコート浜離宮 ザ タワー 12階 NEW 申込あり

    賃料
    79万円 / 管理費:無し
    間取り
    3LDK+SIC
    面積
    97.33㎡
    住所
    東京都港区浜松町1
    交通
    山手線 浜松町駅 徒歩6分 他
    部屋詳細
検討中リストへ追加しました 右上のボタンからまとめて
確認することができます