パークコート ザ・三番町ハウス 6階 2025100457 | 東京都心の高級賃貸マンション [TOKYO RENT]

パークコート ザ・三番町ハウス 6階 2025100457の賃貸情報

賃料
40.9万円
管理費
無し
間取り
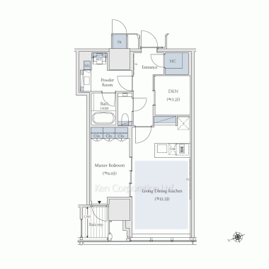
2LDK+WIC
面積
56.70㎡
階数
6階
入居可能日
2025年12月上旬予定

outline 物件概要・設備

建物名
パークコート ザ・三番町ハウス(建物ID: 210692 / 物件ID: 2025100457)
住所
東京都千代田区三番町28
交通 / 駅徒歩
半蔵門線 半蔵門駅 徒歩8分
有楽町線 市ヶ谷駅 徒歩8分
東西線 九段下駅 徒歩9分
※当該物件の最寄駅(路線)、バス停、およびそこまでの徒歩所要時間です
賃料 / 管理費
40.9万円 / 無し(坪単価: 23,848円)
敷金 / 礼金
1ヶ月 / 1ヶ月
契約期間
2年(定期借家契約)
更新料
-
その他費用
お問い合わせください
間取り / 面積
2LDK+WIC / 56.70㎡(17.15坪)
間取り詳細
洋室 7帖、洋室 4帖、リビングダイニングキッチン 12.9帖、バルコニー
方位
南向き
階建 / 階数
地上18階地下2階建 / 6階部分
構造
鉄筋コンクリート造
総戸数
193戸
竣工年月
2025年11月
入居可能日
2025年12月上旬予定
入居諸条件
ペット不可、 住居兼事務所不可
保険
借家人賠償保険に加入していただきます
駐輪場・バイク置場
駐輪場有り
※詳細はお問い合わせください
建物設備・施設
エレベーター、 オートロック、 宅配BOX、 フロントサービス、 コンシェルジェサービス
部屋設備
カウンターキッチン、 システムキッチン、 グリル付き、 コンロ3口、 ガスレンジ、 浄水器、 ディスポーザー、 食洗機、 一部フローリング、 クローゼット、 ウォークインクローゼット、 シューズインクローゼット、 シューズクローゼット、 エアコン、 床暖房、 追焚機能付き、 浴室乾燥機、 給湯、 洗面所独立、 BT別、 室内洗濯機置場、 BS、 CS
備考
■口座振替手数料が別途発生致します。■保証会社必須。【年次型】初回保証料:契約時月額賃料等の50%、継続保証料:毎年1万円。【月次型】初回保証料:契約時月額賃料等の50%、継続保証料:毎月月額賃料等の1%(※保証委託最低金額 初回5万円、継続 月次1,000円)。※契約型は保証会社による。
取り扱い会社
株式会社ケン・コーポレーション 飯田橋支店
取引形態
仲介
情報更新日
2025年12月4日
次回更新予定日
2025年12月18日

availability その他の空室一覧

パークコート ザ・三番町ハウス 空室部屋数:45 部屋
階数 間取り 面積 賃料
3階
2LDK+WIC
56.7㎡
40.3万円
3階
2LDK+WIC
56.7㎡
41.1万円
9階
2LDK+WIC
56.7㎡
41.5万円
6階
2LDK+WIC
56.7㎡
41.7万円
11階
2LDK+WIC
56.7㎡
41.9万円
9階
2LDK+WIC
56.7㎡
42.3万円
3階
2LDK+WIC
63.11㎡
45.8万円
6階
2LDK+WIC
63.11㎡
46.4万円
9階
2LDK+WIC
63.11㎡
47万円
11階
2LDK+WIC
63.11㎡
47.4万円
3階
2LDK+WIC
64.57㎡
48.8万円
6階
2LDK+WIC
64.57㎡
49.4万円
3階
2LDK+WIC
67.39㎡
49.9万円
9階
2LDK+WIC
64.57㎡
50万円
6階
2LDK+WIC
67.39㎡
50.5万円
9階
2LDK+WIC
67.39㎡
51.1万円
11階
2LDK+WIC
67.39㎡
51.5万円
3階
3LDK+WIC
74.26㎡
52.7万円
3階
2LDK+S+WIC
71.11㎡
52.7万円
6階
3LDK+WIC
74.26㎡
53.3万円
6階
3LDK+WIC
71.11㎡
53.3万円
3階
2LDK+S+WIC
73.68㎡
53.4万円
new
9階
3LDK+WIC
71.11㎡
53.9万円
9階
3LDK+WIC
74.26㎡
53.9万円
6階
3LDK+WIC
73.68㎡
54万円
9階
3LDK+WIC
73.68㎡
54.6万円
3階
3LDK+WIC
82.12㎡
57.1万円
3階
2LDK+WIC
76.12㎡
57.5万円
6階
3LDK+WIC
82.12㎡
57.7万円
6階
2LDK+WIC
76.12㎡
58.1万円
9階
3LDK+WIC
82.12㎡
58.3万円
9階
2LDK+WIC
76.12㎡
58.7万円
11階
3LDK+WIC
82.12㎡
58.9万円
11階
2LDK+WIC
76.12㎡
59.1万円
15階
2LDK+WIC
76.12㎡
59.9万円
3階
3LDK+WIC
83.58㎡
60.6万円
6階
3LDK+WIC
83.58㎡
61.2万円
3階
3LDK+WIC
81.21㎡
61.4万円
9階
3LDK+WIC
83.58㎡
61.8万円
6階
3LDK+WIC
81.21㎡
62万円
11階
3LDK+WIC
83.58㎡
62.2万円
9階
3LDK+WIC
81.21㎡
62.6万円
14階
3LDK+WIC
83.58㎡
62.8万円
13階
3LDK+WIC
81.21㎡
63.4万円
16階
3LDK+2WIC
102.15㎡
100万円
階数 間取り 面積 賃料 管理費 敷金・礼金 物件詳細
3階
2LDK+WIC
56.7㎡
40.3万円
無し
1ヶ月 / 1ヶ月
詳細
3階
2LDK+WIC
56.7㎡
41.1万円
無し
1ヶ月 / 1ヶ月
詳細
9階
2LDK+WIC
56.7㎡
41.5万円
無し
1ヶ月 / 1ヶ月
詳細
6階
2LDK+WIC
56.7㎡
41.7万円
無し
1ヶ月 / 1ヶ月
詳細
11階
2LDK+WIC
56.7㎡
41.9万円
無し
1ヶ月 / 1ヶ月
詳細
9階
2LDK+WIC
56.7㎡
42.3万円
無し
1ヶ月 / 1ヶ月
詳細
3階
2LDK+WIC
63.11㎡
45.8万円
無し
1ヶ月 / 1ヶ月
詳細
6階
2LDK+WIC
63.11㎡
46.4万円
無し
1ヶ月 / 1ヶ月
詳細
9階
2LDK+WIC
63.11㎡
47万円
無し
1ヶ月 / 1ヶ月
詳細
11階
2LDK+WIC
63.11㎡
47.4万円
無し
1ヶ月 / 1ヶ月
詳細
3階
2LDK+WIC
64.57㎡
48.8万円
無し
1ヶ月 / 1ヶ月
詳細
6階
2LDK+WIC
64.57㎡
49.4万円
無し
1ヶ月 / 1ヶ月
詳細
3階
2LDK+WIC
67.39㎡
49.9万円
無し
1ヶ月 / 1ヶ月
詳細
9階
2LDK+WIC
64.57㎡
50万円
無し
1ヶ月 / 1ヶ月
詳細
6階
2LDK+WIC
67.39㎡
50.5万円
無し
1ヶ月 / 1ヶ月
詳細
9階
2LDK+WIC
67.39㎡
51.1万円
無し
1ヶ月 / 1ヶ月
詳細
11階
2LDK+WIC
67.39㎡
51.5万円
無し
1ヶ月 / 1ヶ月
詳細
3階
3LDK+WIC
74.26㎡
52.7万円
無し
1ヶ月 / 1ヶ月
詳細
3階
2LDK+S+WIC
71.11㎡
52.7万円
無し
1ヶ月 / 1ヶ月
詳細
6階
3LDK+WIC
74.26㎡
53.3万円
無し
1ヶ月 / 1ヶ月
詳細
6階
3LDK+WIC
71.11㎡
53.3万円
無し
1ヶ月 / 1ヶ月
詳細
3階
2LDK+S+WIC
73.68㎡
53.4万円
無し
1ヶ月 / 1ヶ月
詳細
new
9階
3LDK+WIC
71.11㎡
53.9万円
無し
1ヶ月 / 1ヶ月
詳細
9階
3LDK+WIC
74.26㎡
53.9万円
無し
1ヶ月 / 1ヶ月
詳細
6階
3LDK+WIC
73.68㎡
54万円
無し
1ヶ月 / 1ヶ月
詳細
9階
3LDK+WIC
73.68㎡
54.6万円
無し
1ヶ月 / 1ヶ月
詳細
3階
3LDK+WIC
82.12㎡
57.1万円
無し
1ヶ月 / 1ヶ月
詳細
3階
2LDK+WIC
76.12㎡
57.5万円
無し
1ヶ月 / 1ヶ月
詳細
6階
3LDK+WIC
82.12㎡
57.7万円
無し
1ヶ月 / 1ヶ月
詳細
6階
2LDK+WIC
76.12㎡
58.1万円
無し
1ヶ月 / 1ヶ月
詳細
9階
3LDK+WIC
82.12㎡
58.3万円
無し
1ヶ月 / 1ヶ月
詳細
9階
2LDK+WIC
76.12㎡
58.7万円
無し
1ヶ月 / 1ヶ月
詳細
11階
3LDK+WIC
82.12㎡
58.9万円
無し
1ヶ月 / 1ヶ月
詳細
11階
2LDK+WIC
76.12㎡
59.1万円
無し
1ヶ月 / 1ヶ月
詳細
15階
2LDK+WIC
76.12㎡
59.9万円
無し
1ヶ月 / 1ヶ月
詳細
3階
3LDK+WIC
83.58㎡
60.6万円
無し
1ヶ月 / 1ヶ月
詳細
6階
3LDK+WIC
83.58㎡
61.2万円
無し
1ヶ月 / 1ヶ月
詳細
3階
3LDK+WIC
81.21㎡
61.4万円
無し
1ヶ月 / 1ヶ月
詳細
9階
3LDK+WIC
83.58㎡
61.8万円
無し
1ヶ月 / 1ヶ月
詳細
6階
3LDK+WIC
81.21㎡
62万円
無し
1ヶ月 / 1ヶ月
詳細
11階
3LDK+WIC
83.58㎡
62.2万円
無し
1ヶ月 / 1ヶ月
詳細
9階
3LDK+WIC
81.21㎡
62.6万円
無し
1ヶ月 / 1ヶ月
詳細
14階
3LDK+WIC
83.58㎡
62.8万円
無し
1ヶ月 / 1ヶ月
詳細
13階
3LDK+WIC
81.21㎡
63.4万円
無し
1ヶ月 / 1ヶ月
詳細
16階
3LDK+2WIC
102.15㎡
100万円
無し
1ヶ月 / 1ヶ月
詳細

map 地図

contact お問い合わせ

お問合せの際は物件名や物件番号をお伝えください。
ケン・コーポレーションの営業員が、お客様のご都合に合わせて物件をご案内いたします。

お問い合わせ・内覧予約はこちら
パークコート ザ・三番町ハウス 6階 物件番号:2025100457
0120-395-422
ケン・コーポレーション 飯田橋支店 ※「TOKYO RENTを見て」とお伝えください。
契約成立の場合、弊社に対して仲介手数料として賃料の1.1カ月分相当額のお支払いの承諾をお願いいたします。 間取り表記の詳細:数字=「居室数」、L=「リビングルーム」、D=「ダイニングルーム」、K=「キッチン」、S=「サービスルーム」、F=「ファミリールーム」を指します。 本サイト記載の金額のうち消費税課税となるものについては、支払時点で適用される税率により算出された金額でお支払い頂きますので、本サイト上の金額と、実際にお支払い頂く金額とが異なる場合があることを予めご了承ください。 住宅に関する賃料・管理費は非課税です。 当物件の入居者には借家人賠償保険に加入していただきます。 契約に保証会社をご利用いただく場合には、保証会社との契約締結並びに保証委託料のお支払をいただきます。 賃貸借契約が終了した場合、賃借人または居住者の使用状況や清掃状況にかかわらず、室内清掃(カーペット、壁、天井、建具及び設備機器を含む)費用を賃借人にご負担いただきます。 携帯電話の受信状況は、実際にご使用される携帯電話で室内から通話確認をお願い致します。 定期借家契約の場合の再契約についてはお問い合わせ下さい。尚、再契約が可能な場合は、別途再契約料等がかかります。 間取図・方位・写真・内装仕様など、本サイトの記載概要と現況が異なる場合は現況を優先させていただきます。また、家具付き等の表示がある場合を除き、写真中の家具・調度品などは物件に含まれません。 BS、CS、CATV等の各種放送の視聴の可否、視聴方法、料金形態、並びにインターネットの接続環境、料金形態は、物件別に異なりますので、各サービスの提供業者に直接ご確認下さるようお願いいたします。 設備、施設は別途契約や利用料金がかかるものもございますのでご確認をお願いいたします。 駐車場の空き状況についてはお問い合わせください。 掲載している物件が万が一成約の際はご了承ください。 東京都港区西麻布1-2-7 
株式会社 ケン・コーポレーション 
宅地建物取引業 国土交通大臣 (8) 第4372 号 
取引態様:仲介

recommend - brand

パークコート ザ・三番町ハウスと同じブランドのマンション

  • パークコート渋谷ザタワー

    賃料
    34.5万円~125万円
    間取り
    1LDK~2LDK+WIC
    住所
    東京都渋谷区宇田川町1
    交通
    半蔵門線 渋谷駅 徒歩9分 他
    竣工
    2020年7月
  • パークコート神宮北参道ザタワー

    賃料
    33万円~63.8万円
    間取り
    1LDK~2LDK+WIC
    住所
    東京都渋谷区千駄ヶ谷4
    交通
    副都心線 北参道駅 徒歩1分 他
    竣工
    2023年1月
パークコートシリーズ一覧

recommend - area

パークコート ザ・三番町ハウスと同じエリアのマンション

  • ザ・パークハウス千代田六番町

    賃料
    42万円~145万円
    間取り
    1LDK~3LDK
    住所
    東京都千代田区六番町7
    交通
    中央線 四ツ谷駅 徒歩5分 他
    竣工
    2025年9月
  • フィシオ飯田橋

    賃料
    29.2万円~30.9万円
    間取り
    1LDK
    住所
    東京都千代田区飯田橋2
    交通
    東西線 九段下駅 徒歩4分 他
    竣工
    2025年2月
千鳥ヶ淵・番町エリア一覧

recommend - station

パークコート ザ・三番町ハウスと同じ駅のマンション

  • 千鳥ヶ淵ハウス

    賃料
    26.5万円
    間取り
    1ROOM
    住所
    東京都千代田区三番町2
    交通
    半蔵門線 半蔵門駅 徒歩8分 他
    竣工
    2007年8月
  • パークハウス四谷見附

    賃料
    28万円
    間取り
    1LDK
    住所
    東京都新宿区四谷1
    交通
    中央線 四ツ谷駅 徒歩5分 他
    竣工
    2001年4月

recommend - room

パークコート ザ・三番町ハウス 6階(2LDK+WIC / 56.70㎡)と条件が近いお部屋

  • アジールコート都立大学 2階 NEW 新築

    賃料
    38.7万円 / 管理費:2万円
    間取り
    2LDK+S+WIC
    面積
    65.90㎡
    住所
    東京都目黒区中根1
    交通
    東横線 都立大学駅 徒歩7分 他
    部屋詳細
  • Prima Stella 12階 NEW 新築

    賃料
    35.4万円 / 管理費:1.5万円
    間取り
    2LDK
    面積
    63.74㎡
    住所
    東京都新宿区西新宿8
    交通
    丸ノ内線 西新宿駅 徒歩5分 他
    部屋詳細
検討中リストへ追加しました 右上のボタンからまとめて
確認することができます