ブランズ六番町 6階 2026020006 | 東京都心の高級賃貸マンション [TOKYO RENT]

ブランズ六番町 6階 2026020006の賃貸情報

賃料
98.8万円
管理費
無し
間取り
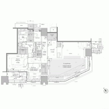
3LDK+WIC
面積
114.28㎡
階数
6階
入居可能日
即入居可

システムキッチンや追炊機能付バス、浴室乾燥機など室内設備が大変充実しております。床暖房があるため、冬でも快適に過ごせます。モニタ付インタホンがあり、セキュリティ面も安心です。禁煙

outline 物件概要・設備

建物名
ブランズ六番町(建物ID: 194739 / 物件ID: 2026020006)
住所
東京都千代田区六番町2
交通 / 駅徒歩
有楽町線 麹町駅 徒歩4分
総武線 市ヶ谷駅 徒歩5分
中央線 四ツ谷駅 徒歩6分
※当該物件の最寄駅(路線)、バス停、およびそこまでの徒歩所要時間です。
賃料 / 管理費
98.8万円 / 無し(坪単価: 28,587円)
敷金 / 礼金
2ヶ月 / 1ヶ月
契約期間
3年(定期借家契約)
更新料
-
その他費用
お問い合わせください
間取り / 面積
3LDK+WIC / 114.28㎡(34.56坪)
間取り詳細
洋室 9帖、洋室 6.6帖、洋室 6帖、リビングダイニング 16.9帖、キッチン 6.2帖、バルコニー(24.03㎡) / 2面バルコニー
方位
東南向き
階建 / 階数
地上15階建 / 6階部分
構造
鉄筋コンクリート造
総戸数
竣工年月
2019年1月
入居可能日
即入居可
入居諸条件
ペット不可、 住居兼事務所不可
保険
借家人賠償保険に加入していただきます
駐車場
有り(55,000円)機械式 ※1台まで
※詳細はお問い合わせください。
駐輪場・バイク置場
駐輪場有り
※詳細はお問い合わせください。
建物設備・施設
エレベーター、 オートロック、 防犯カメラ、 宅配BOX、 敷地内ゴミ置場
部屋設備
カウンターキッチン、 システムキッチン、 グリル付き、 コンロ3口、 ガスレンジ、 ディスポーザー、 食洗機、 一部フローリング、 クローゼット、 ウォークインクローゼット、 シューズインクローゼット、 シューズクローゼット、 エアコン、 床暖房、 オートバス、 追焚機能付き、 浴室乾燥機、 給湯、 洗面所独立、 洗浄機能付便座、 BT別、 トイレ2ヶ所、 室内洗濯機置場、 TVモニター付インターホン
その他
2面採光
備考
■退去時:室内清掃費1,540円(税込)/㎡・天井エアコン洗浄費用27,500円(税込)/基・壁掛けエアコン洗浄費用22,000円(税込)/基■禁煙特約有り■海外源泉有り■保証会社必須。【月次型】初回保証料:契約時月額賃料等の40%、継続保証料:毎月月額賃料等の1%(※保証委託最低金額 初回5万円、継続 月次1000円)。【年次型】初回保証料:契約時月額賃料等の50%、継続保証料:毎年1万円。※契約型は保証会社による。
取り扱い会社
株式会社ケン・コーポレーション 外国部
取引形態
仲介
通学区域小学校
番町小学校 (約100m)
情報更新日
2026年4月6日
次回更新予定日
2026年4月20日

map 地図

contact お問い合わせ

お問合せの際は物件名や物件番号をお伝えください。
ケン・コーポレーションの営業員が、お客様のご都合に合わせて物件をご案内いたします。

お問い合わせ・内覧予約はこちら
ブランズ六番町 6階 物件番号:2026020006
0120-541-344
ケン・コーポレーション 外国部 ※「TOKYO RENTを見て」とお伝えください。
契約成立の場合、弊社に対して仲介手数料として賃料の1.1カ月分相当額のお支払いの承諾をお願いいたします。 間取り表記の詳細:数字=「居室数」、L=「リビングルーム」、D=「ダイニングルーム」、K=「キッチン」、S=「サービスルーム」、F=「ファミリールーム」を指します。 本サイト記載の金額のうち消費税課税となるものについては、支払時点で適用される税率により算出された金額でお支払い頂きますので、本サイト上の金額と、実際にお支払い頂く金額とが異なる場合があることを予めご了承ください。 住宅に関する賃料・管理費は非課税です。 当物件の入居者には借家人賠償保険に加入していただきます。 契約に保証会社をご利用いただく場合には、保証会社との契約締結並びに保証委託料のお支払をいただきます。 賃貸借契約が終了した場合、賃借人または居住者の使用状況や清掃状況にかかわらず、室内清掃(カーペット、壁、天井、建具及び設備機器を含む)費用を賃借人にご負担いただきます。 携帯電話の受信状況は、実際にご使用される携帯電話で室内から通話確認をお願い致します。 定期借家契約の場合の再契約についてはお問い合わせ下さい。尚、再契約が可能な場合は、別途再契約料等がかかります。 間取図・方位・写真・内装仕様など、本サイトの記載概要と現況が異なる場合は現況を優先させていただきます。また、家具付き等の表示がある場合を除き、写真中の家具・調度品などは物件に含まれません。 BS、CS、CATV等の各種放送の視聴の可否、視聴方法、料金形態、並びにインターネットの接続環境、料金形態は、物件別に異なりますので、各サービスの提供業者に直接ご確認下さるようお願いいたします。 設備、施設は別途契約や利用料金がかかるものもございますのでご確認をお願いいたします。 駐車場の空き状況についてはお問い合わせください。 本サイトにおける小学校区は、各自治体より出されている学区データを基に表示したものであり、該当小学校区を保証するものではありません。最新の小学校区に関しましては、各自治体へ直接ご確認ください。 掲載している物件が万が一成約の際はご了承ください。 東京都港区西麻布1-2-7 
株式会社 ケン・コーポレーション 
宅地建物取引業 国土交通大臣 (8) 第4372 号 
取引態様:仲介

recommend - brand

ブランズ六番町と同じブランドの高級賃貸マンション

  • ブランズ六本木飯倉片町

    賃料
    86万円
    間取り
    2LDK
    住所
    東京都港区六本木5
    交通
    日比谷線 六本木駅 徒歩7分 他
    竣工
    2018年12月
  • ブランズタワー芝浦

    賃料
    35万円
    間取り
    2LDK
    住所
    東京都港区芝浦2
    交通
    山手線 田町駅 徒歩8分 他
    竣工
    2021年9月
ブランズシリーズ一覧

recommend - area

ブランズ六番町と同じエリアの高級賃貸マンション

  • パークコート ザ・三番町ハウス

    賃料
    41.1万円~62.7万円
    間取り
    2LDK+WIC~3LDK+WIC
    住所
    東京都千代田区三番町28
    交通
    半蔵門線 半蔵門駅 徒歩8分 他
    竣工
    2025年11月
  • フィシオ飯田橋

    賃料
    29.2万円~30.6万円
    間取り
    1LDK
    住所
    東京都千代田区飯田橋2
    交通
    東西線 九段下駅 徒歩4分 他
    竣工
    2025年2月
千鳥ヶ淵・番町エリア一覧

recommend - station

ブランズ六番町と同じ駅の高級賃貸マンション

  • LaSante一番町

    賃料
    28万円~120万円
    間取り
    1LDK+WIC~3LDK+WIC
    住所
    東京都千代田区一番町20
    交通
    半蔵門線 半蔵門駅 徒歩3分 他
    竣工
    2007年2月
  • 麹町レジデンス

    賃料
    29万円~38万円
    間取り
    1ROOM~1SLDK
    住所
    東京都千代田区麹町3
    交通
    有楽町線 麹町駅 徒歩1分 他
    竣工
    2000年10月

recommend - room

ブランズ六番町 6階(3LDK+WIC / 114.28㎡)と条件が近い高級賃貸マンションのお部屋

  • HARUMI FLAG PARK VILLAGE 50階 NEW 新築

    賃料
    110万円 / 管理費:無し
    間取り
    3LDK+WIC
    面積
    117.27㎡
    住所
    東京都中央区晴海5
    交通
    都営大江戸線 勝どき駅 徒歩18分 他
    部屋詳細
  • DeLCCS品川 8階 NEW

    賃料
    89.5万円 / 管理費:2.5万円
    間取り
    4LDK
    面積
    123.00㎡
    住所
    東京都港区港南4
    交通
    山手線 品川駅 徒歩10分 他
    部屋詳細
検討中リストへ追加しました 右上のボタンからまとめて
確認することができます