ザ・パークハビオSOHO市谷左内町 1階 2026040232 | 東京都心の高級賃貸マンション [TOKYO RENT]

ザ・パークハビオSOHO市谷左内町 1階 2026040232の賃貸情報

賃料
33.67万円
管理費
2.5万円
間取り
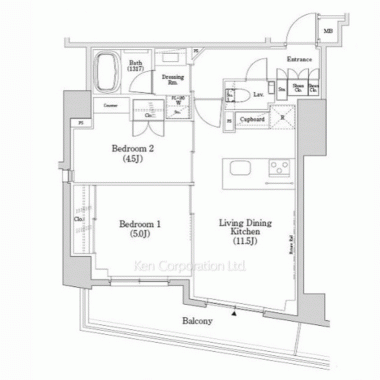
2LDK
面積
50.28㎡
階数
1階
入居可能日
要相談

広々としたリビングと使いやすい間取りが特徴です。キッチンがリビング・バルコニー向きで、料理をしながらリビングの様子や外の景色を見られます。

outline 物件概要・設備

建物名
ザ・パークハビオSOHO市谷左内町(建物ID: 215170 / 物件ID: 2026040232)
住所
東京都新宿区市谷左内町21
交通 / 駅徒歩
中央線 市ヶ谷駅 徒歩4分
総武線 市ヶ谷駅 徒歩4分
南北線 市ヶ谷駅 徒歩3分
※当該物件の最寄駅(路線)、バス停、およびそこまでの徒歩所要時間です。
賃料 / 管理費
33.67万円 / 2.5万円(坪単価: 23,796円)
敷金 / 礼金
1ヶ月 / 1ヶ月
契約期間
2年(定期借家契約)
更新料
-
その他費用
お問い合わせください
間取り / 面積
2LDK / 50.28㎡(15.20坪)
間取り詳細
洋室 5帖、洋室 4.5帖、リビングダイニングキッチン 11.5帖、バルコニー
方位
北東向き
階建 / 階数
地上6階建 / 1階部分
構造
鉄筋コンクリート造
総戸数
竣工年月
2026年5月
入居可能日
要相談
入居諸条件
ペット相談(小型犬・猫計2匹まで)、 住居兼事務所相談、 楽器相談
保険
借家人賠償保険に加入していただきます
建物設備・施設
エレベーター、 オートロック、 防犯カメラ、 宅配BOX、 敷地内ゴミ置場
部屋設備
コンロ3口、 ガスレンジ、 一部フローリング、 クローゼット、 ピクチャーレール、 シューズクローゼット、 エアコン、 追焚機能付き、 浴室乾燥機、 給湯、 洗面所独立、 洗浄機能付便座、 BT別、 室内洗濯機置場、 TVモニター付インターホン、 インターネット専用線、 CATV、 BS、 CS
備考
■コワーキングスペース使用料3,300円(税込)が別途発生致します。■ペット飼育時・SOHO利用時敷金積み増し1ヶ月になります。■エアコン清掃費用が別途発生いたします。■保証会社必須。【月次型】初回保証料:契約時月額賃料等の40%、継続保証料:毎月月額賃料等の1%(※保証委託最低金額 初回5万円、継続 月次1000円)。【年次型】初回保証料:契約時月額賃料等の50%、継続保証料:毎年1万円。※契約型は保証会社による。※但し、(住居兼)事務所利用の場合、初回保証料:契約時月額賃料の100%、継続保証料:毎年10~100%
取り扱い会社
株式会社ケン・コーポレーション 飯田橋支店
取引形態
仲介
通学区域小学校
愛日小学校 (約1,200m)
情報更新日
2026年5月28日
次回更新予定日
2026年6月11日

availability その他の空室一覧

ザ・パークハビオSOHO市谷左内町 空室部屋数:4 部屋
階数 間取り 面積 賃料
4階
2LDK
50.28㎡
35.17万円
6階
2LDK
52.27㎡
39.17万円
5階
2LDK
56.99㎡
43.17万円
6階
2LDK
64.23㎡
47.17万円
階数 間取り 面積 賃料 管理費 敷金・礼金 物件詳細
4階
2LDK
50.28㎡
35.17万円
2.5万円
1ヶ月 / 1ヶ月
詳細
6階
2LDK
52.27㎡
39.17万円
2.5万円
1ヶ月 / 1ヶ月
詳細
5階
2LDK
56.99㎡
43.17万円
2.5万円
1ヶ月 / 1ヶ月
詳細
6階
2LDK
64.23㎡
47.17万円
2.5万円
1ヶ月 / 1ヶ月
詳細

map 地図

contact お問い合わせ

お問合せの際は物件名や物件番号をお伝えください。
ケン・コーポレーションの営業員が、お客様のご都合に合わせて物件をご案内いたします。

お問い合わせ・内覧予約はこちら
ザ・パークハビオSOHO市谷左内町 1階 物件番号:2026040232
0120-395-422
ケン・コーポレーション 飯田橋支店 ※「TOKYO RENTを見て」とお伝えください。
契約成立の場合、弊社に対して仲介手数料として賃料の1.1カ月分相当額のお支払いの承諾をお願いいたします。 間取り表記の詳細:数字=「居室数」、L=「リビングルーム」、D=「ダイニングルーム」、K=「キッチン」、S=「サービスルーム」、F=「ファミリールーム」を指します。 本サイト記載の金額のうち消費税課税となるものについては、支払時点で適用される税率により算出された金額でお支払い頂きますので、本サイト上の金額と、実際にお支払い頂く金額とが異なる場合があることを予めご了承ください。 住宅に関する賃料・管理費は非課税です。 当物件の入居者には借家人賠償保険に加入していただきます。 契約に保証会社をご利用いただく場合には、保証会社との契約締結並びに保証委託料のお支払をいただきます。 賃貸借契約が終了した場合、賃借人または居住者の使用状況や清掃状況にかかわらず、室内清掃(カーペット、壁、天井、建具及び設備機器を含む)費用を賃借人にご負担いただきます。 携帯電話の受信状況は、実際にご使用される携帯電話で室内から通話確認をお願い致します。 定期借家契約の場合の再契約についてはお問い合わせ下さい。尚、再契約が可能な場合は、別途再契約料等がかかります。 間取図・方位・写真・内装仕様など、本サイトの記載概要と現況が異なる場合は現況を優先させていただきます。また、家具付き等の表示がある場合を除き、写真中の家具・調度品などは物件に含まれません。 BS、CS、CATV等の各種放送の視聴の可否、視聴方法、料金形態、並びにインターネットの接続環境、料金形態は、物件別に異なりますので、各サービスの提供業者に直接ご確認下さるようお願いいたします。 設備、施設は別途契約や利用料金がかかるものもございますのでご確認をお願いいたします。 駐車場の空き状況についてはお問い合わせください。 本サイトにおける小学校区は、各自治体より出されている学区データを基に表示したものであり、該当小学校区を保証するものではありません。最新の小学校区に関しましては、各自治体へ直接ご確認ください。 掲載している物件が万が一成約の際はご了承ください。 東京都港区西麻布1-2-7 
株式会社 ケン・コーポレーション 
宅地建物取引業 国土交通大臣 (8) 第4372 号 
取引態様:仲介

recommend - brand

ザ・パークハビオSOHO市谷左内町と同じブランドの高級賃貸マンション

  • ザ・パークハビオ日本橋茅場町

    賃料
    29.7万円~35万円
    間取り
    1LDK~2LDK
    住所
    東京都中央区日本橋茅場町2
    交通
    日比谷線 茅場町駅 徒歩3分 他
    竣工
    2026年2月
  • ザ・パークハビオ代々木

    賃料
    30.8万円~150万円
    間取り
    1LDK~3LDK
    住所
    東京都渋谷区代々木3
    交通
    小田急線 南新宿駅 徒歩6分 他
    竣工
    2025年11月
ザ・パークハビオシリーズ一覧

recommend - area

ザ・パークハビオSOHO市谷左内町と同じエリアの高級賃貸マンション

  • モンテヴェルデ神楽坂弐番館

    賃料
    29.8万円~35.6万円
    間取り
    1LDK~2LDK
    住所
    東京都新宿区新小川町9
    交通
    東西線 飯田橋駅 徒歩5分 他
    竣工
    2025年1月
  • パークスフィア牛込神楽坂

    賃料
    33万円~46万円
    間取り
    2LDK~2LDK+S+WIC
    住所
    東京都新宿区南山伏町3
    交通
    都営大江戸線 牛込柳町駅 徒歩4分 他
    竣工
    2021年7月
四谷・市谷・神楽坂エリア一覧

recommend - station

ザ・パークハビオSOHO市谷左内町と同じ駅の高級賃貸マンション

  • ザ・パークハビオ市ヶ谷イースト

    賃料
    29.5万円~32.3万円
    間取り
    1LDK+WIC~1LDK+S
    住所
    東京都新宿区市谷田町2
    交通
    中央線 市ヶ谷駅 徒歩1分 他
    竣工
    2024年6月
  • パークアクシス市谷左内町

    賃料
    32万円
    間取り
    2LDK
    住所
    東京都新宿区市谷左内町29
    交通
    都営新宿線 市ヶ谷駅 徒歩6分 他
    竣工
    2021年1月

recommend - room

ザ・パークハビオSOHO市谷左内町 1階(2LDK / 50.28㎡)と条件が近い高級賃貸マンションのお部屋

  • ブランズ芝浦 10階 NEW 新築

    賃料
    38万円 / 管理費:2万円
    間取り
    2LDK
    面積
    55.74㎡
    住所
    東京都港区芝浦4
    交通
    山手線 田町駅 徒歩14分 他
    部屋詳細
  • ルフォンプログレ北新宿 11階 NEW 新築

    賃料
    34万円 / 管理費:2万円
    間取り
    2LDK
    面積
    56.74㎡
    住所
    東京都新宿区北新宿1
    交通
    中央線 大久保駅 徒歩3分 他
    部屋詳細
  • プラウド神田 4階 NEW 新築

    賃料
    35万円 / 管理費:無し
    間取り
    2LDK
    面積
    53.22㎡
    住所
    東京都千代田区神田多町2
    交通
    銀座線 神田駅 徒歩3分 他
    部屋詳細
  • TAKANAWA GATEWAY CITY RESIDENCE 26階 NEW 新築

    賃料
    33.7万円 / 管理費:無し
    間取り
    1LDK
    面積
    53.10㎡
    住所
    東京都港区三田3
    交通
    山手線 高輪ゲートウェイ駅 徒歩9分 他
    部屋詳細
検討中リストへ追加しました 右上のボタンからまとめて
確認することができます