ソプラタワー 8階 2026040503 | 東京都心の高級賃貸マンション [TOKYO RENT]

ソプラタワー 8階 2026040503の賃貸情報

賃料
55万円
管理費
無し
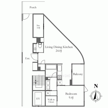
間取り
3LDK
面積
85.75㎡
階数
8階
入居可能日
要相談

2021年【キッチン/浴室/トイレ/フローリング/クロス/食洗器(外国製大容量)床暖房/洗面台/】リノベーション。全室東向きのバルコニーに面してり、眺望・陽当良好。収納面も充実したお部屋になります。

outline 物件概要・設備

建物名
ソプラタワー(建物ID: 122695 / 物件ID: 2026040503)
住所
東京都目黒区青葉台3
交通 / 駅徒歩
田園都市線 池尻大橋駅 徒歩10分
東横線 中目黒駅 徒歩15分
井の頭線 神泉駅 徒歩11分
※当該物件の最寄駅(路線)、バス停、およびそこまでの徒歩所要時間です。
賃料 / 管理費
55万円 / 無し(坪単価: 21,210円)
敷金 / 礼金
2ヶ月 / 1ヶ月
契約期間
3年(定期借家契約)
更新料
-
その他費用
お問い合わせください
間取り / 面積
3LDK / 85.75㎡(25.93坪)
間取り詳細
洋室 7.2帖、洋室 6.1帖、洋室 5帖、リビングダイニングキッチン 19.9帖、バルコニー
方位
東向き
階建 / 階数
地上20階地下2階建 / 8階部分
構造
鉄筋コンクリート造
総戸数
124戸
竣工年月
1999年3月
入居可能日
要相談
入居諸条件
ペット不可、 住居兼事務所不可、 楽器相談
保険
借家人賠償保険に加入していただきます
駐車場
有り(39,600円)機械式 ※1台まで
※詳細はお問い合わせください。
駐輪場・バイク置場
駐輪場有り 上段200円、下段300円(2台目以降は正規の価格+200円)
※詳細はお問い合わせください。
建物設備・施設
エレベーター、 オートロック、 防犯カメラ、 宅配BOX、 フロントサービス、 日勤管理、 敷地内ゴミ置場
部屋設備
オープンキッチン、 カウンターキッチン、 システムキッチン、 グリル付き、 コンロ3口、 ガスレンジ、 浄水器、 食洗機、 全面フローリング、 クローゼット、 ウォークインクローゼット、 ピクチャーレール、 シューズクローゼット、 エアコン、 床暖房、 24時間換気システム、 オートバス、 追焚機能付き、 浴室乾燥機、 給湯、 洗面所独立、 シャンプードレッサー、 洗浄機能付便座、 BT別、 室内洗濯機置場、 TVモニター付インターホン、 ダブルロックキー、 インターネット専用線
その他: ■スーパーマーケットライフ目黒大橋店徒歩4分(約230m)
その他
眺望良好
備考
■退去時:室内清掃費1,320円(税込)/㎡・天井エアコン洗浄費用30,000円(税込)/基・壁掛けエアコン洗浄費用15,000円(税込)/基有
      
建物管理会社
伊藤忠アーバンコミュニティ 株式会社
取り扱い会社
株式会社ケン・コーポレーション 渋谷代官山支店
取引形態
仲介
通学区域小学校
菅刈小学校 (約300m)
情報更新日
2026年4月28日
次回更新予定日
2026年5月12日

map 地図

contact お問い合わせ

お問合せの際は物件名や物件番号をお伝えください。
ケン・コーポレーションの営業員が、お客様のご都合に合わせて物件をご案内いたします。

お問い合わせ・内覧予約はこちら
ソプラタワー 8階 物件番号:2026040503
0120-624-655
ケン・コーポレーション 渋谷代官山支店 ※「TOKYO RENTを見て」とお伝えください。
契約成立の場合、弊社に対して仲介手数料として賃料の1.1カ月分相当額のお支払いの承諾をお願いいたします。 間取り表記の詳細:数字=「居室数」、L=「リビングルーム」、D=「ダイニングルーム」、K=「キッチン」、S=「サービスルーム」、F=「ファミリールーム」を指します。 本サイト記載の金額のうち消費税課税となるものについては、支払時点で適用される税率により算出された金額でお支払い頂きますので、本サイト上の金額と、実際にお支払い頂く金額とが異なる場合があることを予めご了承ください。 住宅に関する賃料・管理費は非課税です。 当物件の入居者には借家人賠償保険に加入していただきます。 契約に保証会社をご利用いただく場合には、保証会社との契約締結並びに保証委託料のお支払をいただきます。 賃貸借契約が終了した場合、賃借人または居住者の使用状況や清掃状況にかかわらず、室内清掃(カーペット、壁、天井、建具及び設備機器を含む)費用を賃借人にご負担いただきます。 携帯電話の受信状況は、実際にご使用される携帯電話で室内から通話確認をお願い致します。 定期借家契約の場合の再契約についてはお問い合わせ下さい。尚、再契約が可能な場合は、別途再契約料等がかかります。 間取図・方位・写真・内装仕様など、本サイトの記載概要と現況が異なる場合は現況を優先させていただきます。また、家具付き等の表示がある場合を除き、写真中の家具・調度品などは物件に含まれません。 BS、CS、CATV等の各種放送の視聴の可否、視聴方法、料金形態、並びにインターネットの接続環境、料金形態は、物件別に異なりますので、各サービスの提供業者に直接ご確認下さるようお願いいたします。 設備、施設は別途契約や利用料金がかかるものもございますのでご確認をお願いいたします。 駐車場の空き状況についてはお問い合わせください。 本サイトにおける小学校区は、各自治体より出されている学区データを基に表示したものであり、該当小学校区を保証するものではありません。最新の小学校区に関しましては、各自治体へ直接ご確認ください。 掲載している物件が万が一成約の際はご了承ください。 東京都港区西麻布1-2-7 
株式会社 ケン・コーポレーション 
宅地建物取引業 国土交通大臣 (8) 第4372 号 
取引態様:仲介

recommend - area

ソプラタワーと同じエリアの高級賃貸マンション

  • Urban Breeze 恵比寿

    賃料
    34.1万円~68万円
    間取り
    1LDK+WIC~2LDK+SIC
    住所
    東京都渋谷区東3
    交通
    日比谷線 恵比寿駅 徒歩7分 他
    竣工
    2026年3月
  • ラ・トゥール青葉台

    賃料
    49.9万円~113万円
    間取り
    1K~2LDK
    住所
    東京都目黒区青葉台3
    交通
    田園都市線 池尻大橋駅 徒歩7分 他
    竣工
    2009年8月
渋谷エリア一覧
  • THE GRANDUO KAMIMEGURO

    賃料
    41.8万円~88万円
    間取り
    1LDK~2LDK
    住所
    東京都目黒区上目黒4
    交通
    東横線 祐天寺駅 徒歩7分 他
    竣工
    2026年6月
  • ラ・トゥール青葉台

    賃料
    49.9万円~113万円
    間取り
    1K~2LDK
    住所
    東京都目黒区青葉台3
    交通
    田園都市線 池尻大橋駅 徒歩7分 他
    竣工
    2009年8月
代官山エリア一覧
  • THE GRANDUO KAMIMEGURO

    賃料
    41.8万円~88万円
    間取り
    1LDK~2LDK
    住所
    東京都目黒区上目黒4
    交通
    東横線 祐天寺駅 徒歩7分 他
    竣工
    2026年6月
  • ラ・トゥール青葉台

    賃料
    49.9万円~113万円
    間取り
    1K~2LDK
    住所
    東京都目黒区青葉台3
    交通
    田園都市線 池尻大橋駅 徒歩7分 他
    竣工
    2009年8月
中目黒エリア一覧

recommend - station

ソプラタワーと同じ駅の高級賃貸マンション

  • パークキューブ代々木富ヶ谷

    賃料
    30万円~30.4万円
    間取り
    2LDK+WIC
    住所
    東京都渋谷区富ヶ谷2
    交通
    千代田線 代々木上原駅 徒歩14分 他
    竣工
    2007年7月
  • スタイリオ目黒大橋HILLSIDE

    賃料
    30.5万円~38.8万円
    間取り
    1LDK~1SLDK
    住所
    東京都目黒区大橋2
    交通
    田園都市線 池尻大橋駅 徒歩5分 他
    竣工
    2024年7月

recommend - room

ソプラタワー 8階(3LDK / 85.75㎡)と条件が近い高級賃貸マンションのお部屋

  • THE GRANDUO KAMIMEGURO 1階 NEW 新築

    賃料
    54.5万円 / 管理費:無し
    間取り
    1LDK+S
    面積
    80.52㎡
    住所
    東京都目黒区上目黒4
    交通
    東横線 祐天寺駅 徒歩7分 他
    部屋詳細
  • レジディア上目黒 2階 NEW

    賃料
    55.5万円 / 管理費:2.5万円
    間取り
    3LDK
    面積
    99.70㎡
    住所
    東京都目黒区上目黒5
    交通
    東横線 中目黒駅 徒歩12分 他
    部屋詳細
  • Brillia THE TOWER TOKYO YAESU AVENUE 17階 NEW

    賃料
    60万円 / 管理費:無し
    間取り
    2LDK
    面積
    83.33㎡
    住所
    東京都中央区新川2
    交通
    日比谷線 八丁堀駅 徒歩5分 他
    部屋詳細
  • TAKANAWA GATEWAY CITY RESIDENCE 7階 NEW 新築

    賃料
    53万円 / 管理費:無し
    間取り
    2LDK
    面積
    77.55㎡
    住所
    東京都港区三田3
    交通
    山手線 高輪ゲートウェイ駅 徒歩9分 他
    部屋詳細

history 最近見た物件

  • ザ・パークタワー東京サウス 29階 NEW

    賃料
    56万円 / 管理費:無し
    間取り
    2LDK
    面積
    108.52㎡
    住所
    東京都品川区東五反田2
    交通
    埼京線 大崎駅 徒歩6分 他
    部屋詳細
閲覧履歴を見る
検討中リストへ追加しました 右上のボタンからまとめて
確認することができます