イプセ学芸大学 7階 2012010118 | 東京都心の高級賃貸マンション [TOKYO RENT]

イプセ学芸大学 7階 2012010118の賃貸情報 申込あり

賃料
29.8万円
管理費
1.2万円
間取り
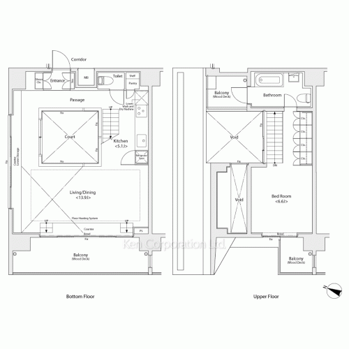
1LDK
面積
68.35㎡
階数
7階
入居可能日
即入居可

2007年グッドデザイン賞受賞。西側はウットデッキバルコニーからの圧巻の眺望、東側は16mの開口一杯に伸びた窓ガラスとバルコニーからの眺望。

outline 物件概要・設備

建物名
イプセ学芸大学(建物ID: 154710 / 物件ID: 2012010118)
住所
東京都目黒区柿の木坂2
交通 / 駅徒歩
東横線 学芸大学駅 徒歩14分
東横線 都立大学駅 徒歩14分
※当該物件の最寄駅(路線)、バス停、およびそこまでの徒歩所要時間です。
賃料 / 管理費
29.8万円 / 1.2万円(坪単価: 14,997円)
敷金 / 礼金
1ヶ月 / 0.5ヶ月
契約期間
2年
更新料
1ヶ月
その他費用
お問い合わせください
間取り / 面積
1LDK / 68.35㎡(20.67坪)
間取り詳細
洋室 6.6帖、リビングダイニング 13.9帖、キッチン 5.1帖、バルコニー / ウッドデッキ
方位
南西向き
階建 / 階数
地上9階地下1階建 / 7階部分
構造
鉄筋コンクリート造
総戸数
68戸
竣工年月
2007年2月
入居可能日
即入居可
入居諸条件
ペット不可、 住居兼事務所不可
保険
借家人賠償保険に加入していただきます
駐輪場・バイク置場
駐輪場有り 62台。最新の空区画情報、料金等はお問い合わせ下さい、 バイク置場有り 6台。原付8台。最新の空区画情報、料金等はお問い合わせ下さい
※詳細はお問い合わせください。
建物設備・施設
エレベーター、 オートロック、 防犯カメラ、 宅配BOX、 敷地内ゴミ置場
部屋設備
システムキッチン、 コンロ3口、 ガスレンジ、 一部フローリング、 クローゼット、 シューズクローゼット、 エアコン、 床暖房、 追焚機能付き、 浴室乾燥機、 給湯、 洗浄機能付便座、 トイレ2ヶ所、 洗濯乾燥機、 TVモニター付インターホン、 インターネット専用線、 CATV、 BS、 CS
その他: ■CATV(スカパーJSAT)※有料チャンネル別途個別契約■インターネット※要別途契約・ファイバービット・auひかり・つなぐネットコミュニケーションズ導入予定有り
その他
吹抜、 角部屋、 2面採光、 メゾネット、 デザイナーズ物件
備考
■鍵交換費用が別途発生致します。■保証会社必須。【月次型】初回保証料:契約時月額賃料等の40%、継続保証料:毎月月額賃料等の1%(※保証委託最低金額 初回5万円、継続 月次1000円)。【年次型】初回保証料:契約時月額賃料等の50%、継続保証料:毎年1万円。※契約型は保証会社による。
取り扱い会社
株式会社ケン・コーポレーション 自由が丘支店
取引形態
仲介
通学区域小学校
東根小学校 (約1,100m)
情報更新日
2026年5月12日
次回更新予定日
2026年5月26日

map 地図

contact お問い合わせ

お問合せの際は物件名や物件番号をお伝えください。
ケン・コーポレーションの営業員が、お客様のご都合に合わせて物件をご案内いたします。

お問い合わせ・内覧予約はこちら
イプセ学芸大学 7階 物件番号:2012010118
0120-572-933
ケン・コーポレーション 自由が丘支店 ※「TOKYO RENTを見て」とお伝えください。
契約成立の場合、弊社に対して仲介手数料として賃料の1.1カ月分相当額のお支払いの承諾をお願いいたします。 間取り表記の詳細:数字=「居室数」、L=「リビングルーム」、D=「ダイニングルーム」、K=「キッチン」、S=「サービスルーム」、F=「ファミリールーム」を指します。 本サイト記載の金額のうち消費税課税となるものについては、支払時点で適用される税率により算出された金額でお支払い頂きますので、本サイト上の金額と、実際にお支払い頂く金額とが異なる場合があることを予めご了承ください。 住宅に関する賃料・管理費は非課税です。 当物件の入居者には借家人賠償保険に加入していただきます。 契約に保証会社をご利用いただく場合には、保証会社との契約締結並びに保証委託料のお支払をいただきます。 賃貸借契約が終了した場合、賃借人または居住者の使用状況や清掃状況にかかわらず、室内清掃(カーペット、壁、天井、建具及び設備機器を含む)費用を賃借人にご負担いただきます。 携帯電話の受信状況は、実際にご使用される携帯電話で室内から通話確認をお願い致します。 定期借家契約の場合の再契約についてはお問い合わせ下さい。尚、再契約が可能な場合は、別途再契約料等がかかります。 間取図・方位・写真・内装仕様など、本サイトの記載概要と現況が異なる場合は現況を優先させていただきます。また、家具付き等の表示がある場合を除き、写真中の家具・調度品などは物件に含まれません。 BS、CS、CATV等の各種放送の視聴の可否、視聴方法、料金形態、並びにインターネットの接続環境、料金形態は、物件別に異なりますので、各サービスの提供業者に直接ご確認下さるようお願いいたします。 設備、施設は別途契約や利用料金がかかるものもございますのでご確認をお願いいたします。 駐車場の空き状況についてはお問い合わせください。 本サイトにおける小学校区は、各自治体より出されている学区データを基に表示したものであり、該当小学校区を保証するものではありません。最新の小学校区に関しましては、各自治体へ直接ご確認ください。 掲載している物件が万が一成約の際はご了承ください。 東京都港区西麻布1-2-7 
株式会社 ケン・コーポレーション 
宅地建物取引業 国土交通大臣 (8) 第4372 号 
取引態様:仲介

recommend - area

イプセ学芸大学と同じエリアの高級賃貸マンション

  • MFPR目黒タワー

    賃料
    31万円~86.5万円
    間取り
    1LDK~3LDK+WIC
    住所
    東京都目黒区目黒1
    交通
    山手線 目黒駅 徒歩7分 他
    竣工
    2008年1月
  • パークアクシス品川天王洲アイル

    賃料
    28.2万円~30.6万円
    間取り
    2LDK+SIC
    住所
    東京都品川区東品川3
    交通
    りんかい線 天王洲アイル駅 徒歩7分 他
    竣工
    2025年3月
城南エリア一覧

recommend - station

イプセ学芸大学と同じ駅の高級賃貸マンション

  • アジールコート都立大学

    賃料
    28万円~38.7万円
    間取り
    2LDK+S+WIC~3LDK+WIC
    住所
    東京都目黒区中根1
    交通
    東横線 都立大学駅 徒歩7分 他
    竣工
    2025年10月
  • CREATIF学芸大学

    賃料
    28.5万円~43.5万円
    間取り
    2LDK~3LDK
    住所
    東京都目黒区柿の木坂2
    交通
    東横線 学芸大学駅 徒歩13分 他
    竣工
    2026年3月

recommend - room

イプセ学芸大学 7階(1LDK / 68.35㎡)と条件が近い高級賃貸マンションのお部屋

  • パークアクシス日本橋浜町 9階 NEW

    賃料
    34.2万円 / 管理費:1.2万円
    間取り
    3LDK
    面積
    68.04㎡
    住所
    東京都中央区日本橋浜町1
    交通
    都営新宿線 浜町駅 徒歩4分 他
    部屋詳細
  • サンフル芝浦キャナルオーパス 9階 NEW

    賃料
    29万円 / 管理費:1.4万円
    間取り
    2LDK
    面積
    61.95㎡
    住所
    東京都港区芝浦2
    交通
    山手線 田町駅 徒歩10分 他
    部屋詳細
  • スタイリオ品川中延 5階 NEW

    賃料
    31.8万円 / 管理費:1.2万円
    間取り
    2LDK
    面積
    69.40㎡
    住所
    東京都品川区二葉4
    交通
    都営浅草線 中延駅 徒歩5分 他
    部屋詳細
  • アジールコート都立大学 1階 NEW 新築

    賃料
    33万円 / 管理費:2万円
    間取り
    3LDK
    面積
    70.52㎡
    住所
    東京都目黒区中根1
    交通
    東横線 都立大学駅 徒歩7分 他
    部屋詳細
検討中リストへ追加しました 右上のボタンからまとめて
確認することができます