オーパスレジデンス銀座イースト 7階 2021020114 | 東京都心の高級賃貸マンション [TOKYO RENT]

オーパスレジデンス銀座イースト 7階 2021020114の賃貸情報

賃料
35.7万円
管理費
1.5万円
間取り
2LDK
面積
55.38㎡
階数
7階
入居可能日
即入居可

築地駅から隅田川方面へ徒歩5分(約400m)の賃貸。浄水器・食器洗い乾燥機・3口ガスコンロ、無料インターネットなどの設備が揃い、ペットの飼育が相談可能です。

outline 物件概要・設備

建物名
オーパスレジデンス銀座イースト(建物ID: 198428 / 物件ID: 2021020114)
住所
東京都中央区築地7
交通 / 駅徒歩
有楽町線 新富町駅 徒歩7分
日比谷線 築地駅 徒歩6分
都営浅草線 東銀座駅 徒歩12分
都営大江戸線 築地市場駅 徒歩12分
※当該物件の最寄駅(路線)、バス停、およびそこまでの徒歩所要時間です。
賃料 / 管理費
35.7万円 / 1.5万円(坪単価: 22,208円)
敷金 / 礼金
1ヶ月 / 0ヶ月
契約期間
2年(定期借家契約)
更新料
-
その他費用
お問い合わせください
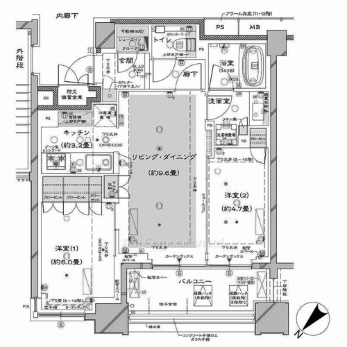
間取り / 面積
2LDK / 55.38㎡(16.75坪)
間取り詳細
洋室 6帖、洋室 4.7帖、リビングダイニング 9.6帖、キッチン 3.2帖、バルコニー(7㎡)
方位
北西向き
階建 / 階数
地上12階建 / 7階部分
構造
鉄筋コンクリート造
総戸数
55戸
竣工年月
2021年3月
入居可能日
即入居可
入居諸条件
ペット相談(小型犬または猫1匹まで)、 住居兼事務所不可
保険
借家人賠償保険に加入していただきます
駐輪場・バイク置場
駐輪場有り 1住戸1台まで(無料)要空き確認
※詳細はお問い合わせください。
建物設備・施設
エレベーター、 オートロック、 防犯カメラ、 宅配BOX、 日勤管理、 敷地内ゴミ置場
部屋設備
グリル付き、 コンロ3口、 食洗機、 クローゼット、 シューズインクローゼット、 シューズクローゼット、 エアコン、 床暖房、 追焚機能付き、 浴室乾燥機、 給湯、 洗面所独立、 BT別、 室内洗濯機置場、 TVモニター付インターホン、 CATV、 BS、 CS
備考
■口座振替の場合手数料が発生致します。■ペット飼育時敷金1ヶ月積み増しになります。■保証会社必須。【月次型】初回保証料:契約時月額賃料等の40%、継続保証料:毎月月額賃料等の1%(※保証委託最低金額 初回5万円、継続 月次1000円)。【年次型】初回保証料:契約時月額賃料等の50%、継続保証料:毎年1万円。※契約型は保証会社による。
取り扱い会社
株式会社ケン・コーポレーション 銀座湾岸支店
取引形態
仲介
通学区域小学校
明石小学校 (約400m)
情報更新日
2026年5月1日
次回更新予定日
2026年5月15日

availability その他の空室一覧

オーパスレジデンス銀座イースト 空室部屋数:6 部屋
階数 間取り 面積 賃料
6階
2LDK
55.38㎡
34.4万円
11階
2LDK+SIC
55.38㎡
34.9万円
4階
2LDK+WIC
54.36㎡
35万円
2階
2LDK+SIC
55.38㎡
35万円
6階
2LDK
55.96㎡
35.9万円
7階
2LDK
55.96㎡
36万円
階数 間取り 面積 賃料 管理費 敷金・礼金 物件詳細
6階
2LDK
55.38㎡
34.4万円
1.5万円
1ヶ月 / 0ヶ月
詳細
11階
2LDK+SIC
55.38㎡
34.9万円
1.5万円
1ヶ月 / 0ヶ月
詳細
4階
2LDK+WIC
54.36㎡
35万円
1.5万円
1ヶ月 / 0ヶ月
詳細
2階
2LDK+SIC
55.38㎡
35万円
1.5万円
1ヶ月 / 0ヶ月
詳細
6階
2LDK
55.96㎡
35.9万円
1.5万円
1ヶ月 / 0ヶ月
詳細
7階
2LDK
55.96㎡
36万円
1.5万円
1ヶ月 / 0ヶ月
詳細

map 地図

contact お問い合わせ

お問合せの際は物件名や物件番号をお伝えください。
ケン・コーポレーションの営業員が、お客様のご都合に合わせて物件をご案内いたします。

お問い合わせ・内覧予約はこちら
オーパスレジデンス銀座イースト 7階 物件番号:2021020114
0120-781-078
ケン・コーポレーション 銀座湾岸支店 ※「TOKYO RENTを見て」とお伝えください。
契約成立の場合、弊社に対して仲介手数料として賃料の1.1カ月分相当額のお支払いの承諾をお願いいたします。 間取り表記の詳細:数字=「居室数」、L=「リビングルーム」、D=「ダイニングルーム」、K=「キッチン」、S=「サービスルーム」、F=「ファミリールーム」を指します。 本サイト記載の金額のうち消費税課税となるものについては、支払時点で適用される税率により算出された金額でお支払い頂きますので、本サイト上の金額と、実際にお支払い頂く金額とが異なる場合があることを予めご了承ください。 住宅に関する賃料・管理費は非課税です。 当物件の入居者には借家人賠償保険に加入していただきます。 契約に保証会社をご利用いただく場合には、保証会社との契約締結並びに保証委託料のお支払をいただきます。 賃貸借契約が終了した場合、賃借人または居住者の使用状況や清掃状況にかかわらず、室内清掃(カーペット、壁、天井、建具及び設備機器を含む)費用を賃借人にご負担いただきます。 携帯電話の受信状況は、実際にご使用される携帯電話で室内から通話確認をお願い致します。 定期借家契約の場合の再契約についてはお問い合わせ下さい。尚、再契約が可能な場合は、別途再契約料等がかかります。 間取図・方位・写真・内装仕様など、本サイトの記載概要と現況が異なる場合は現況を優先させていただきます。また、家具付き等の表示がある場合を除き、写真中の家具・調度品などは物件に含まれません。 BS、CS、CATV等の各種放送の視聴の可否、視聴方法、料金形態、並びにインターネットの接続環境、料金形態は、物件別に異なりますので、各サービスの提供業者に直接ご確認下さるようお願いいたします。 設備、施設は別途契約や利用料金がかかるものもございますのでご確認をお願いいたします。 駐車場の空き状況についてはお問い合わせください。 本サイトにおける小学校区は、各自治体より出されている学区データを基に表示したものであり、該当小学校区を保証するものではありません。最新の小学校区に関しましては、各自治体へ直接ご確認ください。 掲載している物件が万が一成約の際はご了承ください。 東京都港区西麻布1-2-7 
株式会社 ケン・コーポレーション 
宅地建物取引業 国土交通大臣 (8) 第4372 号 
取引態様:仲介

recommend - area

オーパスレジデンス銀座イーストと同じエリアの高級賃貸マンション

  • ザ・パークハビオ日本橋茅場町

    賃料
    30.5万円~35万円
    間取り
    1LDK~2LDK
    住所
    東京都中央区日本橋茅場町2
    交通
    日比谷線 茅場町駅 徒歩3分 他
    竣工
    2026年2月
  • コンフォリア・リヴ八丁堀

    賃料
    間取り
    住所
    東京都中央区入船2
    交通
    日比谷線 八丁堀駅 徒歩4分 他
    竣工
    2026年1月
銀座・日本橋・神田エリア一覧

recommend - station

オーパスレジデンス銀座イーストと同じ駅の高級賃貸マンション

  • Brillia ist Tower 勝どき

    賃料
    25.5万円~56.8万円
    間取り
    1LDK+WIC~3LDK+WIC
    住所
    東京都中央区勝どき1
    交通
    都営大江戸線 勝どき駅 徒歩3分 他
    竣工
    2011年1月
  • レジディア新川Ⅱ

    賃料
    28.5万円~30.5万円
    間取り
    2LDK
    住所
    東京都中央区新川2
    交通
    日比谷線 八丁堀駅 徒歩3分 他
    竣工
    2003年3月

recommend - room

オーパスレジデンス銀座イースト 7階(2LDK / 55.38㎡)と条件が近い高級賃貸マンションのお部屋

  • クレヴィア南麻布 13階 NEW

    賃料
    37.5万円 / 管理費:無し
    間取り
    1LDK
    面積
    58.36㎡
    住所
    東京都港区南麻布2
    交通
    南北線 白金高輪駅 徒歩5分 他
    部屋詳細
  • プラウドタワー芝浦 7階 NEW

    賃料
    40万円 / 管理費:無し
    間取り
    2LDK
    面積
    62.60㎡
    住所
    東京都港区芝浦4
    交通
    山手線 田町駅 徒歩11分 他
    部屋詳細
  • IBIS市ヶ谷 4階 NEW

    賃料
    35万円 / 管理費:1万円
    間取り
    2LDK
    面積
    64.43㎡
    住所
    東京都新宿区払方町2
    交通
    中央線 市ヶ谷駅 徒歩7分 他
    部屋詳細
  • グラン千代田岩本町 4階 NEW 新築

    賃料
    32.9万円 / 管理費:2万円
    間取り
    3LDK
    面積
    64.70㎡
    住所
    東京都千代田区岩本町1
    交通
    日比谷線 小伝馬町駅 徒歩3分 他
    部屋詳細
検討中リストへ追加しました 右上のボタンからまとめて
確認することができます