白金ザ・スカイ EAST棟 35階 2023080229 | 東京都心の高級賃貸マンション [TOKYO RENT]

白金ザ・スカイ EAST棟 35階 2023080229の賃貸情報

賃料
52.5万円
管理費
5.5万円
間取り
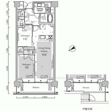
1LDK
面積
55.89㎡
階数
35階
入居可能日
即入居可

outline 物件概要・設備

建物名
白金ザ・スカイ(建物ID: 196802 / 物件ID: 2023080229)
住所
東京都港区白金1
交通 / 駅徒歩
南北線 白金高輪駅 徒歩3分
都営三田線 白金高輪駅 徒歩3分
都営浅草線 泉岳寺駅 徒歩15分
南北線 麻布十番駅 徒歩16分
※当該物件の最寄駅(路線)、バス停、およびそこまでの徒歩所要時間です。
賃料 / 管理費
52.5万円 / 5.5万円(坪単価: 34,319円)
敷金 / 礼金
2ヶ月 / 1ヶ月
契約期間
2年(定期借家契約)
更新料
-
その他費用
お問い合わせください
間取り / 面積
1LDK / 55.89㎡(16.90坪)
間取り詳細
洋室、リビングダイニングキッチン、バルコニー
方位
北向き
階建 / 階数
地上45階地下1階建 / 35階部分
構造
鉄筋コンクリート造(制震構造)
総戸数
1247戸
竣工年月
2023年2月
入居可能日
即入居可
入居諸条件
ペット相談(敷金1か月積み増し)、 住居兼事務所不可、 楽器相談
保険
借家人賠償保険に加入していただきます
駐輪場・バイク置場
駐輪場有り、 バイク置場有り
※詳細はお問い合わせください。
建物設備・施設
エレベーター、 オートロック、 防犯カメラ、 宅配BOX、 スポーツジム、 ゲストルーム、 スカイラウンジ(屋上庭園)、 ペット設備、 フロントサービス、 コンシェルジェサービス、 24時間有人管理、 フロア別ゴミ置き場、 敷地内ゴミ置場
※施設利用に対して別途ご利用料金がかかることがありますのでご確認ください。
部屋設備
オープンキッチン、 カウンターキッチン、 システムキッチン、 グリル付き、 コンロ3口、 ガスレンジ、 浄水器、 ディスポーザー、 食洗機、 全面フローリング、 クローゼット、 ウォークインクローゼット、 シューズインクローゼット、 シューズクローゼット、 エアコン、 床暖房、 24時間換気システム、 オートバス、 追焚機能付き、 浴室乾燥機、 給湯、 洗面所独立、 洗浄機能付便座、 BT別、 室内洗濯機置場、 TVモニター付インターホン、 ダブルロックキー、 ディンプルキー、 インターネット専用線、 CATV、 BS、 CS
備考
■退去時:室内清掃費1,320円(税込)/㎡
      
建物管理会社
株式会社 長谷工コミュニティ
取り扱い会社
株式会社ケン・コーポレーション 国内部
取引形態
仲介
通学区域小学校
白金の丘学園 白金の丘小学校 (約600m)
情報更新日
2026年5月1日
次回更新予定日
2026年5月15日

availability その他の空室一覧

白金ザ・スカイ EAST棟 空室部屋数:2 部屋
階数 間取り 面積 賃料
29階
1LDK
54.5㎡
52万円
12階
2LDK
70.54㎡
55万円
階数 間取り 面積 賃料 管理費 敷金・礼金 物件詳細
29階
1LDK
54.5㎡
52万円
2万円
1ヶ月 / 1ヶ月
詳細
12階
2LDK
70.54㎡
55万円
無し
2ヶ月 / 1ヶ月
詳細
白金ザ・スカイ WEST棟 空室部屋数:1 部屋
階数 間取り 面積 賃料
new
14階
2LDK
60.24㎡
41万円
階数 間取り 面積 賃料 管理費 敷金・礼金 物件詳細
new
14階
2LDK
60.24㎡
41万円
3万円
2ヶ月 / 1ヶ月
詳細

map 地図

contact お問い合わせ

お問合せの際は物件名や物件番号をお伝えください。
ケン・コーポレーションの営業員が、お客様のご都合に合わせて物件をご案内いたします。

お問い合わせ・内覧予約はこちら
白金ザ・スカイ EAST棟 35階 物件番号:2023080229
0120-512-234
ケン・コーポレーション 国内部 ※「TOKYO RENTを見て」とお伝えください。
契約成立の場合、弊社に対して仲介手数料として賃料の1.1カ月分相当額のお支払いの承諾をお願いいたします。 間取り表記の詳細:数字=「居室数」、L=「リビングルーム」、D=「ダイニングルーム」、K=「キッチン」、S=「サービスルーム」、F=「ファミリールーム」を指します。 本サイト記載の金額のうち消費税課税となるものについては、支払時点で適用される税率により算出された金額でお支払い頂きますので、本サイト上の金額と、実際にお支払い頂く金額とが異なる場合があることを予めご了承ください。 住宅に関する賃料・管理費は非課税です。 当物件の入居者には借家人賠償保険に加入していただきます。 契約に保証会社をご利用いただく場合には、保証会社との契約締結並びに保証委託料のお支払をいただきます。 賃貸借契約が終了した場合、賃借人または居住者の使用状況や清掃状況にかかわらず、室内清掃(カーペット、壁、天井、建具及び設備機器を含む)費用を賃借人にご負担いただきます。 携帯電話の受信状況は、実際にご使用される携帯電話で室内から通話確認をお願い致します。 定期借家契約の場合の再契約についてはお問い合わせ下さい。尚、再契約が可能な場合は、別途再契約料等がかかります。 間取図・方位・写真・内装仕様など、本サイトの記載概要と現況が異なる場合は現況を優先させていただきます。また、家具付き等の表示がある場合を除き、写真中の家具・調度品などは物件に含まれません。 BS、CS、CATV等の各種放送の視聴の可否、視聴方法、料金形態、並びにインターネットの接続環境、料金形態は、物件別に異なりますので、各サービスの提供業者に直接ご確認下さるようお願いいたします。 設備、施設は別途契約や利用料金がかかるものもございますのでご確認をお願いいたします。 駐車場の空き状況についてはお問い合わせください。 本サイトにおける小学校区は、各自治体より出されている学区データを基に表示したものであり、該当小学校区を保証するものではありません。最新の小学校区に関しましては、各自治体へ直接ご確認ください。 掲載している物件が万が一成約の際はご了承ください。 東京都港区西麻布1-2-7 
株式会社 ケン・コーポレーション 
宅地建物取引業 国土交通大臣 (8) 第4372 号 
取引態様:仲介

recommend - area

白金ザ・スカイと同じエリアの高級賃貸マンション

  • TAKANAWA GATEWAY CITY RESIDENCE

    賃料
    31.3万円~200万円
    間取り
    1LDK~3LDK
    住所
    東京都港区三田3
    交通
    山手線 高輪ゲートウェイ駅 徒歩9分 他
    竣工
    2026年2月
  • レジディアタワー麻布十番

    賃料
    29.2万円~83.5万円
    間取り
    1LDK~2LDK
    住所
    東京都港区三田1
    交通
    南北線 麻布十番駅 徒歩3分 他
    竣工
    2003年1月
白金・高輪エリア一覧

recommend - station

白金ザ・スカイと同じ駅の高級賃貸マンション

  • イプセ白金台

    賃料
    28.2万円~28.8万円
    間取り
    1LDK+S~2LDK
    住所
    東京都港区白金台2
    交通
    南北線 白金台駅 徒歩9分 他
    竣工
    2026年1月
  • パティオ南麻布

    賃料
    28.8万円
    間取り
    1LDK
    住所
    東京都港区南麻布1
    交通
    南北線 麻布十番駅 徒歩8分 他
    竣工
    1991年9月

recommend - room

白金ザ・スカイ 35階(1LDK / 55.89㎡)と条件が近い高級賃貸マンションのお部屋

  • クラス青山 7階 NEW

    賃料
    59.4万円 / 管理費:無し
    間取り
    1LDK
    面積
    63.07㎡
    住所
    東京都港区北青山3
    交通
    半蔵門線 表参道駅 徒歩7分 他
    部屋詳細
検討中リストへ追加しました 右上のボタンからまとめて
確認することができます