TAKANAWA GATEWAY CITY RESIDENCE 21階 2025090163 | 東京都心の高級賃貸マンション [TOKYO RENT]

TAKANAWA GATEWAY CITY RESIDENCE 21階 2025090163の賃貸情報

賃料
51万円
管理費
無し
間取り
2LDK
面積
74.58㎡
階数
21階
入居可能日
即入居可

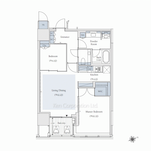
東向きのモデルルーム同タイプ。リビングインのBRとつなげて、約16.7帖のLDとしても利用可能。ゆとりある約10.3帖のMBR。SF/SG/SHの反転タイプ。

outline 物件概要・設備

建物名
TAKANAWA GATEWAY CITY RESIDENCE(建物ID: 213086 / 物件ID: 2025090163)
住所
東京都港区三田3
交通 / 駅徒歩
山手線 高輪ゲートウェイ駅 徒歩9分
都営浅草線 泉岳寺駅 徒歩6分
都営三田線 三田駅 徒歩11分
※当該物件の最寄駅(路線)、バス停、およびそこまでの徒歩所要時間です。
賃料 / 管理費
51万円 / 無し(坪単価: 22,606円)
敷金 / 礼金
1ヶ月 / 1ヶ月
契約期間
3年(定期借家契約)
更新料
-
その他費用
お問い合わせください
間取り / 面積
2LDK / 74.58㎡(22.56坪)
間取り詳細
洋室 10.3帖、洋室 4.5帖、リビングダイニング 12.2帖、キッチン 4.1帖、バルコニー(5.01㎡) / ウッドデッキ
方位
東向き
階建 / 階数
地上44階地下2階建 / 21階部分
構造
鉄筋コンクリート造(制震構造)
総戸数
847戸
竣工年月
2026年2月
入居可能日
即入居可
入居諸条件
ペット相談(小型犬・猫合計2匹まで。中型犬は1匹のみ。)、 住居兼事務所不可
保険
借家人賠償保険に加入していただきます
駐車場
有り(66,000円)機械式、 屋根付き、 地下 ※1台まで
※詳細はお問い合わせください。
駐輪場・バイク置場
駐輪場有り  ラック登録料15,000円~40,000円(再契約時も要支払い)、 バイク置場有り 月額11,000円・税込 ※EV対応は月額16,500円・税込
※詳細はお問い合わせください。
建物設備・施設
エレベーター、 オートロック、 防犯カメラ、 宅配BOX、 スポーツジム、 スカイラウンジ(屋上庭園)、 ペット設備、 トランクルーム(有料)、 フロントサービス、 コンシェルジェサービス、 24時間有人管理、 フロア別ゴミ置き場、 敷地内ゴミ置場
その他: ストレージルーム(310区画)月額9,000円~33,000円・自転車充電ロッカー(48区画)登録料40,000円(再契約時も要支払い)※いずれも限定住戸のみ申込可能
※施設利用に対して別途ご利用料金がかかることがありますのでご確認ください。
部屋設備
システムキッチン、 外国製システムキッチン、 コンロ3口、 ガスレンジ、 浄水器、 ディスポーザー、 食洗機、 冷蔵庫、 全面フローリング、 クローゼット、 ウォークインクローゼット、 ピクチャーレール、 シューズクローゼット、 エアコン、 床暖房、 24時間換気システム、 オートバス、 追焚機能付き、 浴室乾燥機、 給湯、 洗面所独立、 洗浄機能付便座、 BT別、 室内洗濯機置場、 洗濯乾燥機、 天井高2.7m以上、 TVモニター付インターホン、 カードキー、 インターネット専用線(光)、 ネット使用料不要、 BS、 CS、 当社管理
備考
・地域冷暖房費用がかかります。(従量料金制)・ペット飼育時、敷金1か月積み増し。・退去時、清掃費用1,650円(税込)/㎡およびエアコン清掃費用27,500円(税込)/台をご負担いただきます。 ※ペット飼育時、清掃費用660円(税込)/㎡加算■保証会社必須【ケン賃貸保証サービス利用時】初回保証料:契約時月額賃料等の40%、継続保証料:毎月月額賃料等の1%【VIEW家賃保証プラス利用時】初回保証料:契約時月額賃料等の10%、継続保証料:毎月月額賃料等の1.25%、更新料:毎年10,000円※プランは一例です。料金は保証会社により異なります。
      
建物管理会社
JR東日本レジデンシャルサービス 株式会社
取り扱い会社
株式会社ケン・コーポレーション 国内部
取引形態
仲介
通学区域小学校
御田小学校 (約1,800m)
情報更新日
2026年5月12日
次回更新予定日
2026年5月26日

availability その他の空室一覧

TAKANAWA GATEWAY CITY RESIDENCE 空室部屋数:42 部屋
階数 間取り 面積 賃料
13階
1LDK
53.1㎡
31.9万円
19階
1LDK
53.1㎡
32.8万円
21階
1LDK+DEN
62.45㎡
39.8万円
6階
2LDK
78.89㎡
46.5万円
6階
2LDK
71.36㎡
47万円
9階
2LDK
71.36㎡
47.5万円
15階
2LDK
71.36㎡
48万円
6階
2LDK
74.58㎡
48.5万円
6階
2LDK
74.58㎡
48.5万円
13階
2LDK
74.58㎡
49万円
7階
2LDK
74.58㎡
49万円
7階
2LDK
74.58㎡
49万円
13階
2LDK
74.58㎡
49万円
13階
2LDK
74.58㎡
49万円
15階
2LDK
74.58㎡
49.5万円
19階
2LDK
71.36㎡
50万円
24階
2LDK
71.36㎡
50万円
21階
2LDK
74.58㎡
51万円
21階
2LDK
74.58㎡
51万円
23階
2LDK
74.58㎡
51.5万円
12階
2LDK
77.55㎡
52.5万円
11階
2LDK
77.55㎡
52.5万円
7階
2LDK
77.55㎡
53万円
33階
1LDK
69.15㎡
58.1万円
41階
1LDK
69.15㎡
61.1万円
33階
1LDK+DEN
79.82㎡
65.1万円
30階
2LDK
95.87㎡
84万円
36階
2LDK
95.87㎡
86万円
29階
2LDK
100.64㎡
91万円
32階
2LDK
110.8㎡
91万円
42階
2LDK
110.8㎡
97万円
38階
2LDK
114.45㎡
98万円
30階
2LDK
119.02㎡
100万円
35階
2LDK
111.99㎡
103万円
32階
2LDK
118.83㎡
105万円
42階
2LDK
110.12㎡
107万円
32階
3LDK
133.01㎡
118万円
39階
3LDK
133.01㎡
123万円
39階
3LDK
152.27㎡
150万円
33階
3LDK
157.63㎡
152万円
42階
3LDK
196.18㎡
180万円
new
41階
3LDK
192.61㎡
200万円
階数 間取り 面積 賃料 管理費 敷金・礼金 物件詳細
13階
1LDK
53.1㎡
31.9万円
無し
1ヶ月 / 1ヶ月
詳細
19階
1LDK
53.1㎡
32.8万円
無し
1ヶ月 / 1ヶ月
詳細
21階
1LDK+DEN
62.45㎡
39.8万円
無し
1ヶ月 / 1ヶ月
詳細
6階
2LDK
78.89㎡
46.5万円
無し
1ヶ月 / 1ヶ月
詳細
6階
2LDK
71.36㎡
47万円
無し
1ヶ月 / 1ヶ月
詳細
9階
2LDK
71.36㎡
47.5万円
無し
1ヶ月 / 1ヶ月
詳細
15階
2LDK
71.36㎡
48万円
無し
1ヶ月 / 1ヶ月
詳細
6階
2LDK
74.58㎡
48.5万円
無し
1ヶ月 / 1ヶ月
詳細
6階
2LDK
74.58㎡
48.5万円
無し
1ヶ月 / 1ヶ月
詳細
13階
2LDK
74.58㎡
49万円
無し
1ヶ月 / 1ヶ月
詳細
7階
2LDK
74.58㎡
49万円
無し
1ヶ月 / 1ヶ月
詳細
7階
2LDK
74.58㎡
49万円
無し
1ヶ月 / 1ヶ月
詳細
13階
2LDK
74.58㎡
49万円
無し
1ヶ月 / 1ヶ月
詳細
13階
2LDK
74.58㎡
49万円
無し
1ヶ月 / 1ヶ月
詳細
15階
2LDK
74.58㎡
49.5万円
無し
1ヶ月 / 1ヶ月
詳細
19階
2LDK
71.36㎡
50万円
無し
1ヶ月 / 1ヶ月
詳細
24階
2LDK
71.36㎡
50万円
無し
1ヶ月 / 1ヶ月
詳細
21階
2LDK
74.58㎡
51万円
無し
1ヶ月 / 1ヶ月
詳細
21階
2LDK
74.58㎡
51万円
無し
1ヶ月 / 1ヶ月
詳細
23階
2LDK
74.58㎡
51.5万円
無し
1ヶ月 / 1ヶ月
詳細
12階
2LDK
77.55㎡
52.5万円
無し
1ヶ月 / 1ヶ月
詳細
11階
2LDK
77.55㎡
52.5万円
無し
1ヶ月 / 1ヶ月
詳細
7階
2LDK
77.55㎡
53万円
無し
1ヶ月 / 1ヶ月
詳細
33階
1LDK
69.15㎡
58.1万円
無し
3ヶ月 / 0ヶ月
詳細
41階
1LDK
69.15㎡
61.1万円
無し
3ヶ月 / 0ヶ月
詳細
33階
1LDK+DEN
79.82㎡
65.1万円
無し
3ヶ月 / 0ヶ月
詳細
30階
2LDK
95.87㎡
84万円
無し
3ヶ月 / 0ヶ月
詳細
36階
2LDK
95.87㎡
86万円
無し
3ヶ月 / 0ヶ月
詳細
29階
2LDK
100.64㎡
91万円
無し
3ヶ月 / 0ヶ月
詳細
32階
2LDK
110.8㎡
91万円
無し
3ヶ月 / 0ヶ月
詳細
42階
2LDK
110.8㎡
97万円
無し
3ヶ月 / 0ヶ月
詳細
38階
2LDK
114.45㎡
98万円
無し
3ヶ月 / 0ヶ月
詳細
30階
2LDK
119.02㎡
100万円
無し
3ヶ月 / 0ヶ月
詳細
35階
2LDK
111.99㎡
103万円
無し
3ヶ月 / 0ヶ月
詳細
32階
2LDK
118.83㎡
105万円
無し
3ヶ月 / 0ヶ月
詳細
42階
2LDK
110.12㎡
107万円
無し
3ヶ月 / 0ヶ月
詳細
32階
3LDK
133.01㎡
118万円
無し
3ヶ月 / 0ヶ月
詳細
39階
3LDK
133.01㎡
123万円
無し
3ヶ月 / 0ヶ月
詳細
39階
3LDK
152.27㎡
150万円
無し
3ヶ月 / 0ヶ月
詳細
33階
3LDK
157.63㎡
152万円
無し
3ヶ月 / 0ヶ月
詳細
42階
3LDK
196.18㎡
180万円
無し
3ヶ月 / 0ヶ月
詳細
new
41階
3LDK
192.61㎡
200万円
無し
3ヶ月 / 0ヶ月
詳細

map 地図

contact お問い合わせ

お問合せの際は物件名や物件番号をお伝えください。
ケン・コーポレーションの営業員が、お客様のご都合に合わせて物件をご案内いたします。

お問い合わせ・内覧予約はこちら
TAKANAWA GATEWAY CITY RESIDENCE 21階 物件番号:2025090163
0120-512-234
ケン・コーポレーション 国内部 ※「TOKYO RENTを見て」とお伝えください。
契約成立の場合、弊社に対して仲介手数料として賃料の1.1カ月分相当額のお支払いの承諾をお願いいたします。 間取り表記の詳細:数字=「居室数」、L=「リビングルーム」、D=「ダイニングルーム」、K=「キッチン」、S=「サービスルーム」、F=「ファミリールーム」を指します。 本サイト記載の金額のうち消費税課税となるものについては、支払時点で適用される税率により算出された金額でお支払い頂きますので、本サイト上の金額と、実際にお支払い頂く金額とが異なる場合があることを予めご了承ください。 住宅に関する賃料・管理費は非課税です。 当物件の入居者には借家人賠償保険に加入していただきます。 契約に保証会社をご利用いただく場合には、保証会社との契約締結並びに保証委託料のお支払をいただきます。 賃貸借契約が終了した場合、賃借人または居住者の使用状況や清掃状況にかかわらず、室内清掃(カーペット、壁、天井、建具及び設備機器を含む)費用を賃借人にご負担いただきます。 携帯電話の受信状況は、実際にご使用される携帯電話で室内から通話確認をお願い致します。 定期借家契約の場合の再契約についてはお問い合わせ下さい。尚、再契約が可能な場合は、別途再契約料等がかかります。 間取図・方位・写真・内装仕様など、本サイトの記載概要と現況が異なる場合は現況を優先させていただきます。また、家具付き等の表示がある場合を除き、写真中の家具・調度品などは物件に含まれません。 BS、CS、CATV等の各種放送の視聴の可否、視聴方法、料金形態、並びにインターネットの接続環境、料金形態は、物件別に異なりますので、各サービスの提供業者に直接ご確認下さるようお願いいたします。 設備、施設は別途契約や利用料金がかかるものもございますのでご確認をお願いいたします。 駐車場の空き状況についてはお問い合わせください。 本サイトにおける小学校区は、各自治体より出されている学区データを基に表示したものであり、該当小学校区を保証するものではありません。最新の小学校区に関しましては、各自治体へ直接ご確認ください。 掲載している物件が万が一成約の際はご了承ください。 東京都港区西麻布1-2-7 
株式会社 ケン・コーポレーション 
宅地建物取引業 国土交通大臣 (8) 第4372 号 
取引態様:仲介

recommend - area

TAKANAWA GATEWAY CITY RESIDENCEと同じエリアの高級賃貸マンション

  • 芝公園レジデンス

    賃料
    49.9万円~59.9万円
    間取り
    2LDK~2LDK+LOFT
    住所
    東京都港区芝3
    交通
    都営三田線 芝公園駅 徒歩4分 他
    竣工
    2000年9月
  • レジディアタワー麻布十番

    賃料
    28.8万円~83.5万円
    間取り
    1LDK~2LDK
    住所
    東京都港区三田1
    交通
    南北線 麻布十番駅 徒歩3分 他
    竣工
    2003年1月
三田・芝エリア一覧
  • 品川プリンス・レジデンス

    賃料
    35万円~65万円
    間取り
    1LDK~3LDK
    住所
    東京都港区高輪4
    交通
    山手線 品川駅 徒歩6分 他
    竣工
    1995年3月
  • レジディアタワー麻布十番

    賃料
    28.8万円~83.5万円
    間取り
    1LDK~2LDK
    住所
    東京都港区三田1
    交通
    南北線 麻布十番駅 徒歩3分 他
    竣工
    2003年1月
白金・高輪エリア一覧

recommend - station

TAKANAWA GATEWAY CITY RESIDENCEと同じ駅の高級賃貸マンション

  • パークアクシス芝浦キャナル

    賃料
    28.9万円
    間取り
    2LDK
    住所
    東京都港区海岸3
    交通
    山手線 田町駅 徒歩12分 他
    竣工
    2022年1月
  • サンフル芝浦キャナルオーパス

    賃料
    29万円
    間取り
    2LDK
    住所
    東京都港区芝浦2
    交通
    山手線 田町駅 徒歩10分 他
    竣工
    2003年11月

recommend - room

TAKANAWA GATEWAY CITY RESIDENCE 21階(2LDK / 74.58㎡)と条件が近い高級賃貸マンションのお部屋

  • パークホームズ南麻布ザレジデンス 9階 NEW

    賃料
    48万円 / 管理費:無し
    間取り
    2LDK
    面積
    73.43㎡
    住所
    東京都港区南麻布2
    交通
    南北線 麻布十番駅 徒歩7分 他
    部屋詳細
  • 大崎ガーデンレジデンス 13階 NEW

    賃料
    55万円 / 管理費:無し
    間取り
    3LDK
    面積
    82.61㎡
    住所
    東京都品川区西品川1
    交通
    山手線 大崎駅 徒歩8分 他
    部屋詳細
  • パークハウス平河町 7階 NEW

    賃料
    49万円 / 管理費:2万円
    間取り
    2LDK
    面積
    83.00㎡
    住所
    東京都千代田区平河町1
    交通
    有楽町線 麹町駅 徒歩4分 他
    部屋詳細
  • TAKANAWA GATEWAY CITY RESIDENCE 19階 新築

    賃料
    50万円 / 管理費:無し
    間取り
    2LDK
    面積
    71.36㎡
    住所
    東京都港区三田3
    交通
    山手線 高輪ゲートウェイ駅 徒歩9分 他
    部屋詳細
検討中リストへ追加しました 右上のボタンからまとめて
確認することができます