TAKANAWA GATEWAY CITY RESIDENCE 7階 2025090422 | 東京都心の高級賃貸マンション [TOKYO RENT]

TAKANAWA GATEWAY CITY RESIDENCE 7階 2025090422の賃貸情報

賃料
53万円
管理費
無し
間取り
2LDK
面積
77.55㎡
階数
7階
入居可能日
2026年5月中旬予定

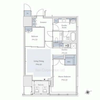
東向き。リビングインのBRとつなげて、約19.5帖のLDとしても利用可能。SIC+WIC付きで収納豊富。SDの反転タイプ。5~7階は、8階以上よりもバルコニーが広めに設計された特別住戸。

outline 物件概要・設備

建物名
TAKANAWA GATEWAY CITY RESIDENCE(建物ID: 213086 / 物件ID: 2025090422)
住所
東京都港区三田3
交通 / 駅徒歩
山手線 高輪ゲートウェイ駅 徒歩9分
都営浅草線 泉岳寺駅 徒歩6分
都営三田線 三田駅 徒歩11分
※当該物件の最寄駅(路線)、バス停、およびそこまでの徒歩所要時間です。
賃料 / 管理費
53万円 / 無し(坪単価: 22,601円)
敷金 / 礼金
1ヶ月 / 1ヶ月
契約期間
3年(定期借家契約)
更新料
-
その他費用
お問い合わせください
間取り / 面積
2LDK / 77.55㎡(23.45坪)
間取り詳細
洋室 9.2帖、洋室 5.7帖、リビングダイニング 13.8帖、キッチン 4.2帖、バルコニー(18.7㎡) / ウッドデッキ
方位
東向き
階建 / 階数
地上44階地下2階建 / 7階部分
構造
鉄筋コンクリート造(制震構造)
総戸数
847戸
竣工年月
2026年2月
入居可能日
2026年5月中旬予定
入居諸条件
ペット相談(小型犬・猫合計2匹まで。中型犬は1匹のみ。)、 住居兼事務所不可
保険
借家人賠償保険に加入していただきます
駐車場
有り(66,000円)機械式、 屋根付き、 地下 ※1台まで
※詳細はお問い合わせください。
駐輪場・バイク置場
駐輪場有り  ラック登録料15,000円~40,000円(再契約時も要支払い)、 バイク置場有り 月額11,000円・税込 ※EV対応は月額16,500円・税込
※詳細はお問い合わせください。
建物設備・施設
エレベーター、 オートロック、 防犯カメラ、 宅配BOX、 スポーツジム、 スカイラウンジ(屋上庭園)、 ペット設備、 トランクルーム(有料)、 フロントサービス、 コンシェルジェサービス、 24時間有人管理、 フロア別ゴミ置き場、 敷地内ゴミ置場
その他: ストレージルーム(310区画)月額9,000円~33,000円・自転車充電ロッカー(48区画)登録料40,000円(再契約時も要支払い)※いずれも限定住戸のみ申込可能
※施設利用に対して別途ご利用料金がかかることがありますのでご確認ください。
部屋設備
システムキッチン、 外国製システムキッチン、 コンロ3口、 ガスレンジ、 浄水器、 ディスポーザー、 食洗機、 冷蔵庫、 全面フローリング、 クローゼット、 ウォークインクローゼット、 シューズインクローゼット、 ピクチャーレール、 シューズクローゼット、 エアコン、 床暖房、 24時間換気システム、 オートバス、 追焚機能付き、 浴室乾燥機、 給湯、 洗面所独立、 洗浄機能付便座、 BT別、 室内洗濯機置場、 洗濯乾燥機、 天井高2.7m以上、 TVモニター付インターホン、 カードキー、 インターネット専用線(光)、 ネット使用料不要、 BS、 CS、 当社管理
備考
・地域冷暖房費用がかかります。(従量料金制)・ペット飼育時、敷金1か月積み増し。・退去時、清掃費用1,650円(税込)/㎡およびエアコン清掃費用27,500円(税込)/台をご負担いただきます。 ※ペット飼育時、清掃費用660円(税込)/㎡加算■保証会社必須【ケン賃貸保証サービス利用時】初回保証料:契約時月額賃料等の40%、継続保証料:毎月月額賃料等の1%【VIEW家賃保証プラス利用時】初回保証料:契約時月額賃料等の10%、継続保証料:毎月月額賃料等の1.25%、更新料:毎年10,000円※プランは一例です。料金は保証会社により異なります。
      
建物管理会社
JR東日本レジデンシャルサービス 株式会社
取り扱い会社
株式会社ケン・コーポレーション 国内部
取引形態
仲介
通学区域小学校
御田小学校 (約1,800m)
情報更新日
2026年4月22日
次回更新予定日
2026年5月6日

availability その他の空室一覧

TAKANAWA GATEWAY CITY RESIDENCE 空室部屋数:48 部屋
階数 間取り 面積 賃料
new
10階
1LDK
53.1㎡
31.3万円
new
12階
1LDK
53.1㎡
31.6万円
new
16階
1LDK
53.1㎡
32.2万円
new
15階
1LDK
53.1㎡
32.2万円
new
25階
1LDK
53.1㎡
33.7万円
new
15階
1LDK
60.87㎡
36.6万円
new
6階
2LDK
71.36㎡
47万円
new
9階
2LDK
71.36㎡
47.5万円
new
15階
2LDK
71.36㎡
48万円
new
6階
2LDK
74.58㎡
48.5万円
new
6階
2LDK
74.58㎡
48.5万円
new
13階
2LDK
74.58㎡
49万円
new
7階
2LDK
74.58㎡
49万円
new
7階
2LDK
74.58㎡
49万円
new
15階
2LDK
74.58㎡
49.5万円
new
21階
2LDK
74.58㎡
51万円
new
21階
2LDK
74.58㎡
51万円
new
21階
2LDK
74.58㎡
51万円
new
26階
2LDK
71.36㎡
51.5万円
new
10階
2LDK
77.55㎡
52万円
new
18階
2LDK
77.55㎡
54万円
new
36階
1LDK
69.15㎡
58.1万円
new
29階
1LDK
69.86㎡
60万円
new
41階
1LDK
69.15㎡
61.1万円
new
33階
1LDK+DEN
79.82㎡
65.1万円
new
40階
1LDK+DEN
79.82㎡
66.6万円
new
16階
3LDK
109.44㎡
79.8万円
new
36階
2LDK
95.87㎡
86万円
new
33階
2LDK
95.87㎡
86万円
new
29階
2LDK
100.64㎡
91万円
new
34階
2LDK
110.8㎡
93万円
new
37階
2LDK
100.64㎡
95万円
new
42階
2LDK
110.8㎡
97万円
new
38階
2LDK
114.45㎡
98万円
new
30階
2LDK
119.02㎡
100万円
new
31階
2LDK
111.99㎡
101万円
new
35階
2LDK
119.02㎡
102.5万円
new
32階
2LDK
118.83㎡
105万円
new
42階
2LDK
110.12㎡
107万円
new
32階
3LDK
133.01㎡
118万円
new
39階
3LDK
133.01㎡
123万円
new
33階
3LDK
152.27㎡
147万円
new
40階
3LDK
152.27㎡
150万円
new
33階
3LDK
157.63㎡
152万円
new
35階
3LDK
157.63㎡
152万円
new
37階
3LDK
161.7㎡
160万円
new
42階
3LDK
196.18㎡
180万円
new
41階
3LDK
192.61㎡
200万円
階数 間取り 面積 賃料 管理費 敷金・礼金 物件詳細
new
10階
1LDK
53.1㎡
31.3万円
無し
1ヶ月 / 1ヶ月
詳細
new
12階
1LDK
53.1㎡
31.6万円
無し
1ヶ月 / 1ヶ月
詳細
new
16階
1LDK
53.1㎡
32.2万円
無し
1ヶ月 / 1ヶ月
詳細
new
15階
1LDK
53.1㎡
32.2万円
無し
1ヶ月 / 1ヶ月
詳細
new
25階
1LDK
53.1㎡
33.7万円
無し
1ヶ月 / 1ヶ月
詳細
new
15階
1LDK
60.87㎡
36.6万円
無し
1ヶ月 / 1ヶ月
詳細
new
6階
2LDK
71.36㎡
47万円
無し
1ヶ月 / 1ヶ月
詳細
new
9階
2LDK
71.36㎡
47.5万円
無し
1ヶ月 / 1ヶ月
詳細
new
15階
2LDK
71.36㎡
48万円
無し
1ヶ月 / 1ヶ月
詳細
new
6階
2LDK
74.58㎡
48.5万円
無し
1ヶ月 / 1ヶ月
詳細
new
6階
2LDK
74.58㎡
48.5万円
無し
1ヶ月 / 1ヶ月
詳細
new
13階
2LDK
74.58㎡
49万円
無し
1ヶ月 / 1ヶ月
詳細
new
7階
2LDK
74.58㎡
49万円
無し
1ヶ月 / 1ヶ月
詳細
new
7階
2LDK
74.58㎡
49万円
無し
1ヶ月 / 1ヶ月
詳細
new
15階
2LDK
74.58㎡
49.5万円
無し
1ヶ月 / 1ヶ月
詳細
new
21階
2LDK
74.58㎡
51万円
無し
1ヶ月 / 1ヶ月
詳細
new
21階
2LDK
74.58㎡
51万円
無し
1ヶ月 / 1ヶ月
詳細
new
21階
2LDK
74.58㎡
51万円
無し
1ヶ月 / 1ヶ月
詳細
new
26階
2LDK
71.36㎡
51.5万円
無し
1ヶ月 / 1ヶ月
詳細
new
10階
2LDK
77.55㎡
52万円
無し
1ヶ月 / 1ヶ月
詳細
new
18階
2LDK
77.55㎡
54万円
無し
1ヶ月 / 1ヶ月
詳細
new
36階
1LDK
69.15㎡
58.1万円
無し
3ヶ月 / 0ヶ月
詳細
new
29階
1LDK
69.86㎡
60万円
無し
3ヶ月 / 0ヶ月
詳細
new
41階
1LDK
69.15㎡
61.1万円
無し
3ヶ月 / 0ヶ月
詳細
new
33階
1LDK+DEN
79.82㎡
65.1万円
無し
3ヶ月 / 0ヶ月
詳細
new
40階
1LDK+DEN
79.82㎡
66.6万円
無し
3ヶ月 / 0ヶ月
詳細
new
16階
3LDK
109.44㎡
79.8万円
無し
1ヶ月 / 1ヶ月
詳細
new
36階
2LDK
95.87㎡
86万円
無し
3ヶ月 / 0ヶ月
詳細
new
33階
2LDK
95.87㎡
86万円
無し
3ヶ月 / 0ヶ月
詳細
new
29階
2LDK
100.64㎡
91万円
無し
3ヶ月 / 0ヶ月
詳細
new
34階
2LDK
110.8㎡
93万円
無し
3ヶ月 / 0ヶ月
詳細
new
37階
2LDK
100.64㎡
95万円
無し
3ヶ月 / 0ヶ月
詳細
new
42階
2LDK
110.8㎡
97万円
無し
3ヶ月 / 0ヶ月
詳細
new
38階
2LDK
114.45㎡
98万円
無し
3ヶ月 / 0ヶ月
詳細
new
30階
2LDK
119.02㎡
100万円
無し
3ヶ月 / 0ヶ月
詳細
new
31階
2LDK
111.99㎡
101万円
無し
3ヶ月 / 0ヶ月
詳細
new
35階
2LDK
119.02㎡
102.5万円
無し
3ヶ月 / 0ヶ月
詳細
new
32階
2LDK
118.83㎡
105万円
無し
3ヶ月 / 0ヶ月
詳細
new
42階
2LDK
110.12㎡
107万円
無し
3ヶ月 / 0ヶ月
詳細
new
32階
3LDK
133.01㎡
118万円
無し
3ヶ月 / 0ヶ月
詳細
new
39階
3LDK
133.01㎡
123万円
無し
3ヶ月 / 0ヶ月
詳細
new
33階
3LDK
152.27㎡
147万円
無し
3ヶ月 / 0ヶ月
詳細
new
40階
3LDK
152.27㎡
150万円
無し
3ヶ月 / 0ヶ月
詳細
new
33階
3LDK
157.63㎡
152万円
無し
3ヶ月 / 0ヶ月
詳細
new
35階
3LDK
157.63㎡
152万円
無し
3ヶ月 / 0ヶ月
詳細
new
37階
3LDK
161.7㎡
160万円
無し
3ヶ月 / 0ヶ月
詳細
new
42階
3LDK
196.18㎡
180万円
無し
3ヶ月 / 0ヶ月
詳細
new
41階
3LDK
192.61㎡
200万円
無し
3ヶ月 / 0ヶ月
詳細

map 地図

contact お問い合わせ

お問合せの際は物件名や物件番号をお伝えください。
ケン・コーポレーションの営業員が、お客様のご都合に合わせて物件をご案内いたします。

お問い合わせ・内覧予約はこちら
TAKANAWA GATEWAY CITY RESIDENCE 7階 物件番号:2025090422
0120-512-234
ケン・コーポレーション 国内部 ※「TOKYO RENTを見て」とお伝えください。
契約成立の場合、弊社に対して仲介手数料として賃料の1.1カ月分相当額のお支払いの承諾をお願いいたします。 間取り表記の詳細:数字=「居室数」、L=「リビングルーム」、D=「ダイニングルーム」、K=「キッチン」、S=「サービスルーム」、F=「ファミリールーム」を指します。 本サイト記載の金額のうち消費税課税となるものについては、支払時点で適用される税率により算出された金額でお支払い頂きますので、本サイト上の金額と、実際にお支払い頂く金額とが異なる場合があることを予めご了承ください。 住宅に関する賃料・管理費は非課税です。 当物件の入居者には借家人賠償保険に加入していただきます。 契約に保証会社をご利用いただく場合には、保証会社との契約締結並びに保証委託料のお支払をいただきます。 賃貸借契約が終了した場合、賃借人または居住者の使用状況や清掃状況にかかわらず、室内清掃(カーペット、壁、天井、建具及び設備機器を含む)費用を賃借人にご負担いただきます。 携帯電話の受信状況は、実際にご使用される携帯電話で室内から通話確認をお願い致します。 定期借家契約の場合の再契約についてはお問い合わせ下さい。尚、再契約が可能な場合は、別途再契約料等がかかります。 間取図・方位・写真・内装仕様など、本サイトの記載概要と現況が異なる場合は現況を優先させていただきます。また、家具付き等の表示がある場合を除き、写真中の家具・調度品などは物件に含まれません。 BS、CS、CATV等の各種放送の視聴の可否、視聴方法、料金形態、並びにインターネットの接続環境、料金形態は、物件別に異なりますので、各サービスの提供業者に直接ご確認下さるようお願いいたします。 設備、施設は別途契約や利用料金がかかるものもございますのでご確認をお願いいたします。 駐車場の空き状況についてはお問い合わせください。 本サイトにおける小学校区は、各自治体より出されている学区データを基に表示したものであり、該当小学校区を保証するものではありません。最新の小学校区に関しましては、各自治体へ直接ご確認ください。 掲載している物件が万が一成約の際はご了承ください。 東京都港区西麻布1-2-7 
株式会社 ケン・コーポレーション 
宅地建物取引業 国土交通大臣 (8) 第4372 号 
取引態様:仲介

recommend - area

TAKANAWA GATEWAY CITY RESIDENCEと同じエリアの高級賃貸マンション

  • レジディアタワー麻布十番

    賃料
    29.2万円~83.5万円
    間取り
    1LDK~2LDK
    住所
    東京都港区三田1
    交通
    南北線 麻布十番駅 徒歩3分 他
    竣工
    2003年1月
  • White Tower Hamamatsucho

    賃料
    29万円~58万円
    間取り
    1LDK~3LDK
    住所
    東京都港区浜松町1
    交通
    山手線 浜松町駅 徒歩3分 他
    竣工
    2008年2月
三田・芝エリア一覧
  • the UPPERHOUSE SHIROKANE

    賃料
    135万円~300万円
    間取り
    3LDK~4LDK
    住所
    東京都港区白金2
    交通
    南北線 白金高輪駅 徒歩10分 他
    竣工
    2026年2月
  • 白金タワー

    賃料
    32.9万円~55万円
    間取り
    1LDK~2LDK
    住所
    東京都港区白金1
    交通
    都営三田線 白金高輪駅 徒歩1分 他
    竣工
    2005年9月
白金・高輪エリア一覧

recommend - station

TAKANAWA GATEWAY CITY RESIDENCEと同じ駅の高級賃貸マンション

  • パークアクシス芝浦

    賃料
    29万円
    間取り
    2LDK+WIC
    住所
    東京都港区芝浦2
    交通
    ゆりかもめ線 芝浦ふ頭駅 徒歩8分 他
    竣工
    2012年10月
  • プラウドタワー芝浦

    賃料
    30.1万円~43万円
    間取り
    1LDK~2LDK
    住所
    東京都港区芝浦4
    交通
    山手線 田町駅 徒歩11分 他
    竣工
    2023年1月

recommend - room

TAKANAWA GATEWAY CITY RESIDENCE 7階(2LDK / 77.55㎡)と条件が近い高級賃貸マンションのお部屋

  • TAKANAWA GATEWAY CITY RESIDENCE 13階 NEW 新築

    賃料
    49万円 / 管理費:無し
    間取り
    2LDK
    面積
    74.58㎡
    住所
    東京都港区三田3
    交通
    山手線 高輪ゲートウェイ駅 徒歩9分 他
    部屋詳細
  • プレミスト東銀座築地 Arc Court 14階 NEW

    賃料
    50万円 / 管理費:2万円
    間取り
    2LDK
    面積
    71.11㎡
    住所
    東京都中央区築地7
    交通
    日比谷線 築地駅 徒歩4分 他
    部屋詳細
検討中リストへ追加しました 右上のボタンからまとめて
確認することができます